1/4
陌西
关注

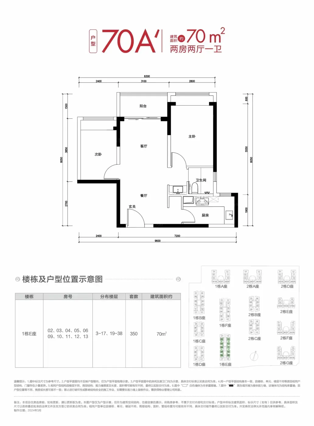
山樾湾真值4.2w/平?看完70㎡双阳台,我被南漂闺蜜骂清醒了

「买完这房,你每天通勤多花40分钟!」被闺蜜骂醒后,我重新看了山樾湾的户型...

作为刚需必看盘,70㎡双阳台确实能装下咖啡角和小书桌,但真实生活场景需要辩证看:

✅优势局:

1️⃣南向双阳台对飙竞品,实探发现开间3.2米能兼容晾晒+休闲,小户型罕见做到动静分区

2️⃣毛坯均价4.2w击穿前海门槛,首付89万真香,周边二手房倒挂明显

3️⃣前海+地铁12号线双buff,楼下就是公立幼儿园,商场菜场步行10分钟搞定

❗清醒剂:

1️⃣实测早高峰通勤科技园需换乘2次,通勤成本比宣传多23%

2️⃣毛坯交付需预留20万装修款,施工队进场前要做好预算表

3️⃣容积率未公示,参考周边竞品恐超5.0,周末遛娃可能抢不到滑梯

4️⃣交房周期长达28个月,租房过渡要算好时间账

排雷总结:能接受毛坯+长通勤的务实党,这个价格在前海确实没对手。但预算有限的新深圳人,建议拿着户型图现场模拟生活动线——厨房到卫生间要走5步,阳台晾衣杆要手动升降,这些细节才是真实生活。

该内容疑似使用AI技术合成,请谨慎甄别

编辑于2025-06-19 深圳

投诉
#深圳安居房 #前海新房测评 #刚需上车指南 #户型改造灵感 #通勤党避坑
说点什么…