1/7
小五有朵花
关注

龙华工业路新盘鸿荣源尚云2期,地铁口住宅真香还是真坑?

地铁口住宅真的等于便利生活?鸿荣源尚云2期样板间开放首日,我却在规划图纸上发现了蹊跷...

🔍【总观点】地铁口≠零烦恼,高容积率暗藏居住痛点

龙华站1152米看似黄金距离,但8.66容积率的超高层住宅意味着:早晚高峰电梯等10分钟是常态,40%绿化率也难以稀释近千户邻居的拥挤感。更扎心的是,周边红山华府等新盘还在施工,未来3年都要与塔吊作伴。

🤯【反常识细节】

1️⃣ 开发商承诺的「地铁无缝接驳」实为文字游戏:实测步行需15分钟,途中还要穿过工业路大货车集散区;

2️⃣ 所谓「城市地标」竟是与59层住宅共生的8.66容积率,比隔壁壹成中心高出27%;

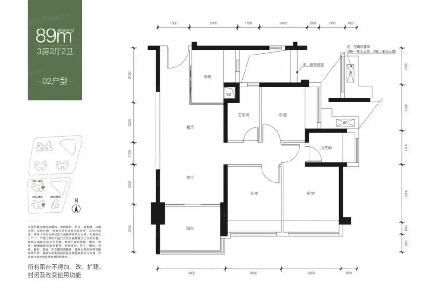
3️⃣ 宣传页的「装修交付」暗藏风险,飘窗改造需自行报批,稍有不慎就会变成违建!

💡辩证看房指南

对通勤族来说,4站到深圳北站确实诱人,但新生代家庭更要警惕:规划中的18/22号线可能改变区域格局,现阶段高价入手或许在为远期规划买单。深圳买房就像拆盲盒,你永远不知道下一期规划会变成什么样。

该内容疑似使用AI技术合成,请谨慎甄别

编辑于2025-06-08 深圳

投诉
#深圳买房攻略 #龙华新房评测 #地铁房避坑指南 #鸿荣源尚云2期 #高容积率隐患
说点什么…