1/3
东门小辣椒
关注

3.8万单价买福田双地铁精装房?这价格到底藏着什么猫腻

深圳核心区居然出现3字头楼盘?梅林这个双地铁口新盘实测发现,总价1字头起的精装现房竟藏着这些真相!

项目距离9/22号线双地铁口仅700米,实测步行8分钟到站台。楼下就是梅林中学,周边三大商超环伺,年轻家庭日常采买确实方便。不过要注意,项目物业类型登记为写字楼,居住体验与传统住宅存在差异。

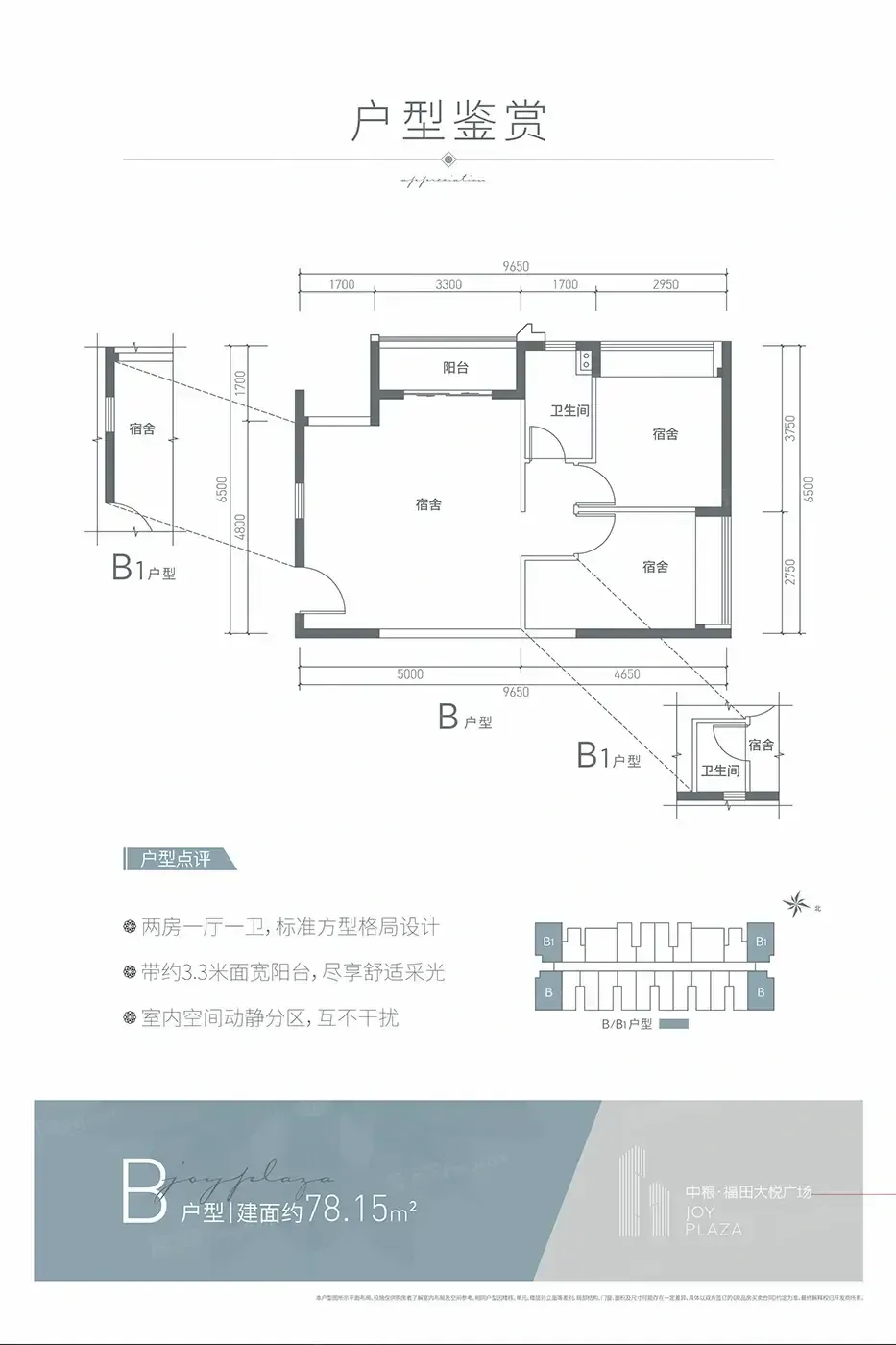
主推的78㎡两房户型确实亮眼,南北双阳台设计让晾晒无忧,明厨明卫布局打破小户型压抑感。实测样板间层高3米,配合全景落地窗,空间感比想象中通透。但要注意看房时核对实际交付标准,部分户型存在承重墙限制改造的情况。

单价3.8万起看似诱人,但需注意首付比例、贷款年限等隐性成本。现房交付省去等待期,民水民电+燃气入户的组合,在同类产品中确实少见。不过周边在售二手住宅普遍5万+的行情下,这个价格差异值得深思。

当通勤时间可以换算成房价,当阳台风景能抵半份月供,深圳年轻人到底该妥协还是坚持?这个撕开价格面具的现房项目,正在改写福田购房者的选择逻辑。

该内容疑似使用AI技术合成,请谨慎甄别

编辑于2025-06-01 深圳

投诉
#深圳买房攻略 #福田新房测评 #地铁房避坑指南 #小户型设计 #现房实探
说点什么…