1/4
紫玉大路
关注

福田地铁口120㎡三房,总价1245万起值吗?

"朋友说福田这房价能买两套光明,但看完样板间我直接刷卡了。"

贵≠智商税,但细节决定值不值:

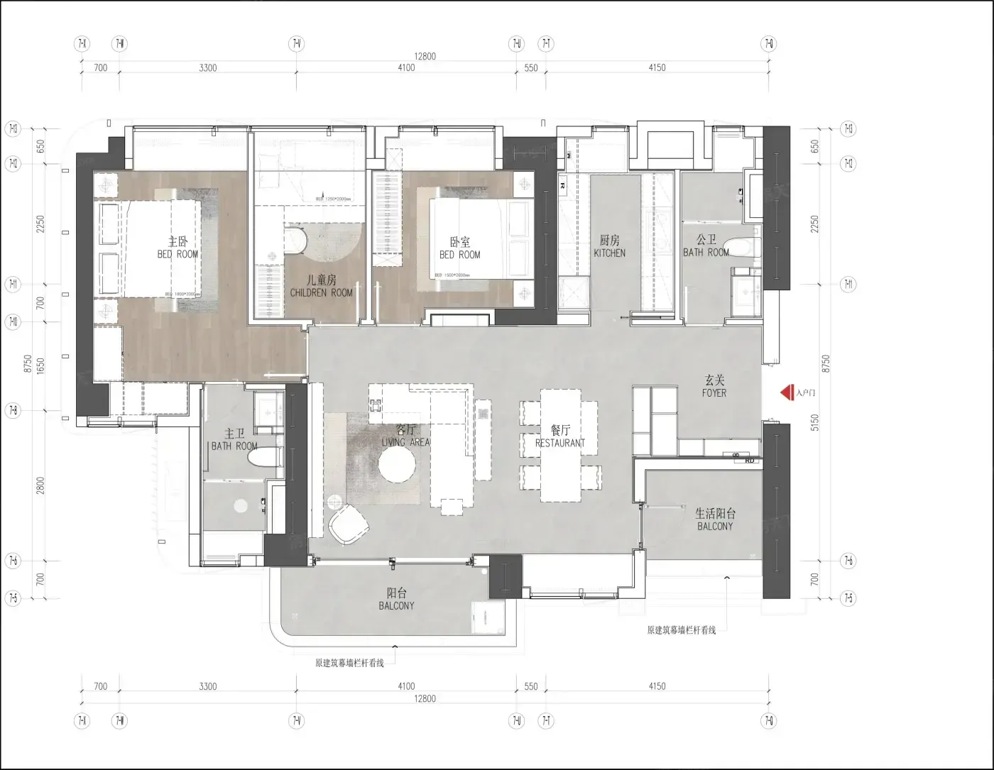
1. 「空间美学」:飘窗改咖啡角不是噱头,实测1.2m进深能放意式机+手冲套装,早C晚A动线比独立吧台更合理

2. 「生活半径」:235米地铁口是真·步行距离(实测4分半),但沙尾站早高峰换乘通道要走7分钟算硬伤

3. 「辩证看配套」:楼下就是红树林生态廊道是亮点,但周边城中村界面要等旧改,短期存在割裂感

实测硬伤要警惕:

- 容积率9.0堪比港岛豪宅,低区住户可能要和对面楼玩「对视游戏」

- 沙嘴路早晚高峰堵车实录显示,自驾出行要比导航多预留15分钟

你的生活容器,值得花多少预算?

该内容疑似使用AI技术合成,请谨慎甄别

编辑于2025-05-30 深圳

投诉
#深圳买房攻略 户型设计 地铁房测评 生活美学 购房避坑指南
说点什么…