1/3
冷de天
关注

满京华·金硕藏着什么秘密?光明区惊现矛盾综合体

为什么说光明区这个新盘是「冰火两重天」?实测满京华·金硕后发现了三大真相!

🔥真香定律:3地铁+3高速的硬核配置,6号线光明站步行10分钟直达。但要注意西侧龙大高速的「白噪音」可能劝退浅眠星人。

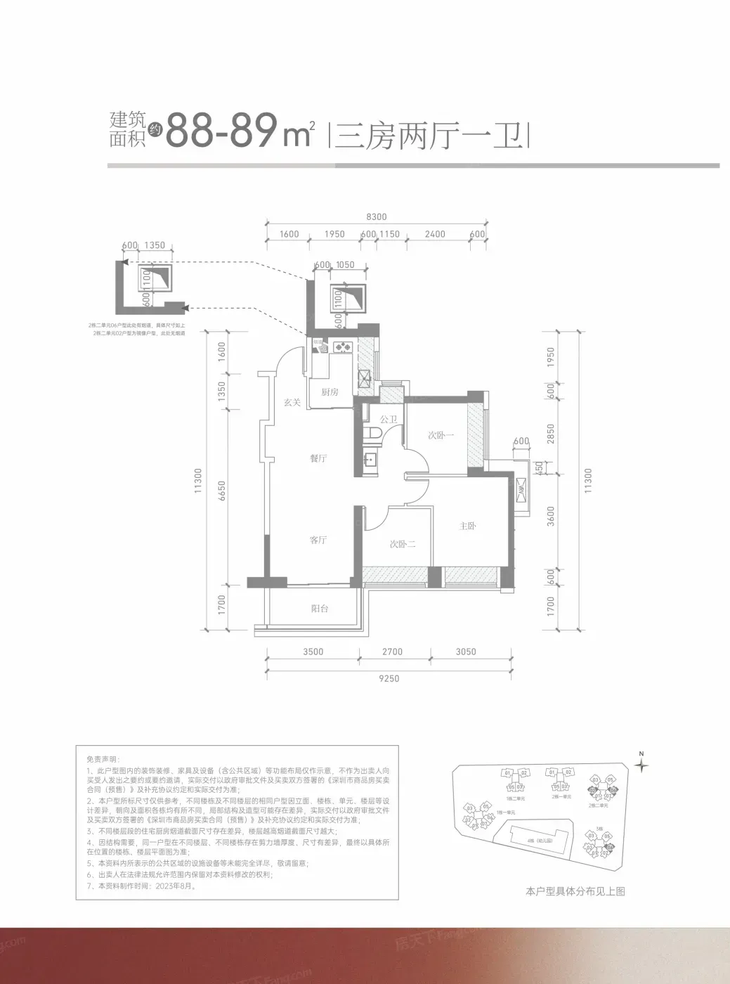
🛋️89㎡能做真四房?实测发现LDK一体化设计确实显大,飘窗改咖啡角的脑洞太戳年轻人!可6.0容积率下的小区花园,更像是楼缝里的「盆景艺术」。

🍜楼下便利店要步行15分钟?好在光明大街站自带商圈基因,但现阶段的「美食荒漠」状态确实要忍两年。

每个楼盘都是优缺点并存的「非完美恋人」,满京华·金硕像极了都市青年的生活状态——在便捷与静谧间找平衡,在理想与现实间做取舍。这样的「矛盾美学」,不正是我们这代人的居住哲学吗?

该内容疑似使用AI技术合成,请谨慎甄别

编辑于2025-05-28 深圳

投诉
#光明区新房测评 #深圳地铁房解析 #户型设计避坑指南 #新生代居住选择 #生活场景化选房
说点什么…