1/6
骑白马看日落
关注

石岩4万+新盘是生活家天堂还是刚需陷阱?阳台山下藏着多少惊喜与妥协

在深圳花340万就能拥有精装三房?阳台山脚下的悦云花园用价格撩拨着新生代家庭的神经。当开发商喊着「森林氧吧+双地铁」的slogan时,我们更想知道:这个价格洼地里究竟藏着多少真实的生活可能性?

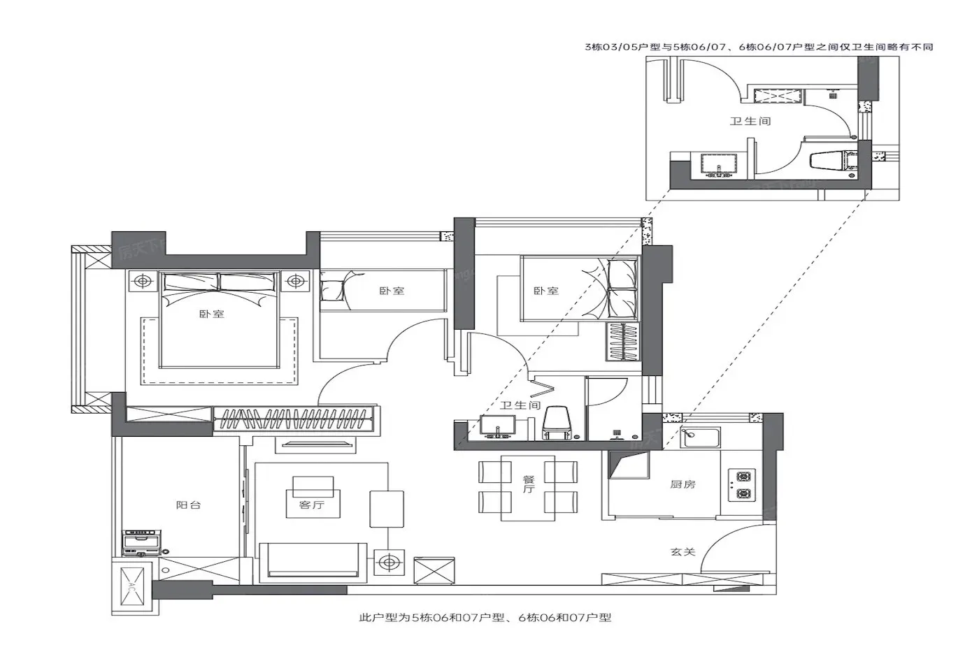
推开79㎡户型的样板间,飘窗咖啡角改造术瞬间击中都市人的小资情结。南向阳台山景作天然幕布,周末宅家就能实现「山间下午茶自由」。但4.5的容积率让楼间距略显局促,建议选房时重点考察采光面。

在建的13号线和深大城际像是悬在空中的彩蛋,罗租站600米的直线距离换算成实际步行,需要穿越三个红绿灯的现实路网。不过对科技园打工人来说,3站到南山的通勤半径确实诱人。

生态资源堪称王炸组合:南向直面阳台山森林公园,西侧湿地公园的晚风能吹散加班的疲惫。但商业配套还在发育期,楼下3600㎡底商目前只能满足基础需求,周末逛gai得依赖3公里外的万达广场。

对于2025年交房的期房来说,教育用地规划像是薛定谔的猫——省一级石岩公学的学位香不香,得看未来实际划分政策。那些冲着「准学区房」来的家庭,建议仔细研究深圳租赁凭证和学位锁定新政。

当山景飘窗遇见密集楼栋,当双地铁红利需要时间兑现,这个装满生活想象的白盒子,究竟会成为都市游牧族的理想容器,还是刚需过渡的临时驿站?答案藏在每个家庭不同的生活优先级里。

该内容疑似使用AI技术合成,请谨慎甄别

编辑于2025-05-28 深圳

投诉
#深圳买房攻略 #户型改造灵感 #石岩生活圈 #通勤房测评 #刚需房避坑
说点什么…