1/5
四月神话
关注

深圳石岩·悦云|阳台山脚下住三房,值吗?

在深圳花400万住进森林氧吧,是理想还是妥协?朋友小洁上个月签完购房合同,坐在飘窗上望着阳台山发了半小时呆。这位90后产品经理曾坚持"通勤必须30分钟",直到看房时被南向飘窗的晨雾惊艳——阳光穿透林间薄雾洒在咖啡杯沿的瞬间,她突然理解了"容器生活学"的真谛。

但现实很快给了她辩证思考的机会。周末带爸妈看房时,父亲指着户型图里的动静分区点头称赞,母亲却在楼下商业街转了三圈后嘀咕:"菜场要穿过湿地公园才到"。更扎心的是,当她把新家定位发给闺蜜时,对方秒回:"去科技园要换两趟公交吧?"

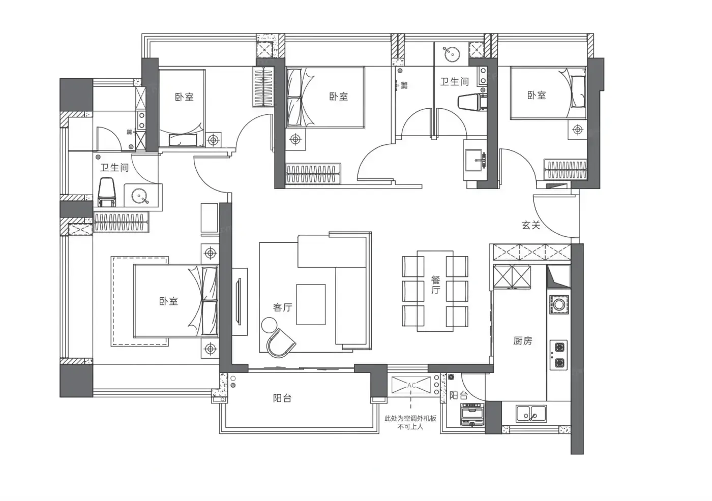
这个79㎡的盒子装得下山色云影,也装得下生活褶皱。南向飘窗改造成咖啡角后,清晨煮咖啡能听见鸟鸣;可当加班到深夜打车回家,龙腾路的霓虹又提醒着这里终究不是中心区。石岩人民医院3公里内可达的安心感,遇上早高峰堵在罗租立交时,总显得有点力不从心。

当山风掠过128㎡的四房阳台,当湿地公园的栈道印满亲子脚印,当社区书吧的落地窗框住晚霞——这里不是钢筋森林里的避难所,而是新生代家庭的生活实验场。你会为推窗见绿放弃半小时通勤吗?会因商业配套成熟度重新定义生活半径吗?要在山景与城芯间找到那个微妙平衡点,或许才是当代居住美学的终极命题。

该内容疑似使用AI技术合成,请谨慎甄别

编辑于2025-05-28 深圳

投诉
#深圳刚需买房 #生态宜居 #户型改造 #石岩生活 #购房指南
说点什么…