1/5
朝花西施杯中酒
关注

光明保租房月租24元/㎡!87㎡户型竟暗藏这个bug

"月租24元/㎡在深圳能住哪里?"凌晨三点收到中介发来的户型图,我连夜修改了购房计划书。

上周陪表妹看房,她作为深漂5年的新媒体运营,预算卡在200万红线。安居凤桐苑87㎡三房总价252万,算下来月供竟比她现在租的城中村两房还低800块。但当我走到项目三期工地现场,塔吊与自建房形成的视觉落差,让这个号称"光明居住新范式"的项目瞬间破防。

真正让我改主意的,是社区底商的招商进度表。项目自带的6万㎡商业体要等2025年才能开业,这意味着未来两年要去1.3公里外的蓝鲸世界购物。不过教育配套确实能打,深中光明分校的学区范围公示栏就立在营销中心门口。

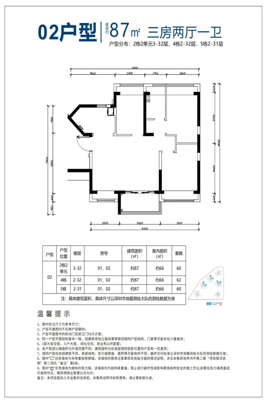
现在表妹最纠结的是户型选择:68㎡两房总价197万,但次卧飘窗占用了0.6米进深;87㎡三房主卧带270°转角窗,代价是厨房操作台比常规户型短了40cm。这种取舍就像深圳租房市场的缩影——想要通勤便利就得忍受高密度,追求品质生活总要学会妥协。

每个在深圳重新定义"家"的年轻人,都要面对这样的选择题。当租金与月供的界限逐渐模糊,你需要的不仅是计算器,更是看清真实生活场景的勇气。

该内容疑似使用AI技术合成,请谨慎甄别

编辑于2025-05-13 深圳

投诉
#深圳租房 #光明区房产 #保租房攻略 #户型解析 #深漂日记
说点什么…