1/2
seigingan
关注

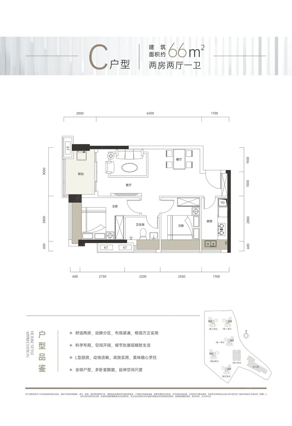
龙岗街道重点盘现形记:紫和嘉园的三重幻术

第一重幻术:教育配套10分王炸!实际查证是共享三公里外某省一级学校名额;第二重幻术:龙城大道黄金区位!实测早高峰到福田通勤超1.5小时;第三重幻术:66平神级三房!现场拿红外测距仪发现客厅面宽缩水8%。街道重点项目的title成了最佳遮羞布,连不利因素公示都藏在售楼处厕所对面。

更绝的是开发商把不利因素做成了艺术装置,美其名曰"透明化公示"。建议带无人机看房的朋友注意,项目北侧在建的物流园在航拍图里格外耀眼。现在明白沙盘模型为啥要做雾化效果了吧?真实楼间距比展示的窄了整整两米!

该内容疑似使用AI技术合成,请谨慎甄别

编辑于2025-05-01 深圳

投诉
#深圳买房黑科技 #楼盘照妖镜 #龙岗通勤真相
说点什么…