1/6
February
关注

🏙️康利乾城新图曝光!地铁沿线+高绿化,房源信息一网打尽!🌳

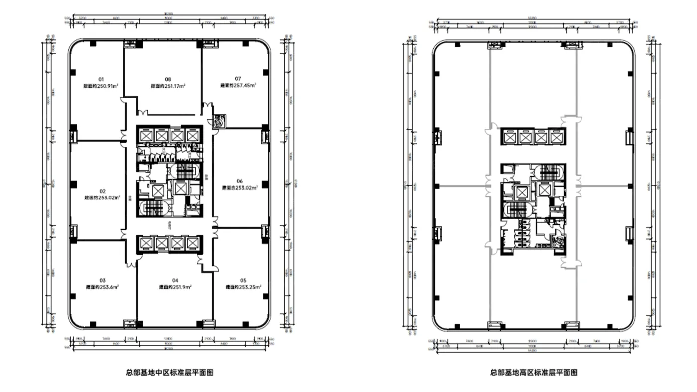
重磅消息!康利乾城最新曝光了一组图片,包括总平面图、公寓标准层平面图、写字楼楼层平面图、写字楼平面图和公寓样板图,全方位展示项目细节!🏗️ 作为地铁沿线的优质楼盘,康利乾城不仅交通便利,还拥有30%的高绿化率,为购房者打造绿色宜居环境。🌿 项目位于布澜路13号,由深圳康利置业有限公司开发,地下停车位多达2300个,完全满足业主需求。🚗 这些新图让购房者能更直观地了解楼盘布局和设计,为选房提供重要参考!

🔍楼盘亮点提炼:

地铁沿线:项目紧邻地铁,交通便捷,通勤无忧,适合上班族和家庭居住。🚇

高绿化率:30%的绿化率,打造生态居住环境,提升生活品质。🌳

充足停车位:地下车位数2300个,解决停车难题,提升居住便利性。🅿️

多元户型设计:公寓和写字楼平面图曝光,满足不同购房者的需求。🏢

开发商实力:深圳康利置业有限公司开发,品质有保障,购房更安心。🏆

2025-03-14 深圳

投诉
说点什么…