1/6
晴天小猪0607
关注

和平顶配学区惊现38㎡鸽子笼?金廊时代这波操作给年轻人挖坑还是解套

你敢信一环内的和平学区房居然做到38㎡?金廊时代这个操作直接把本土地产圈炸了锅。实测这个奇葩户型,有3个致命真相要揭穿:

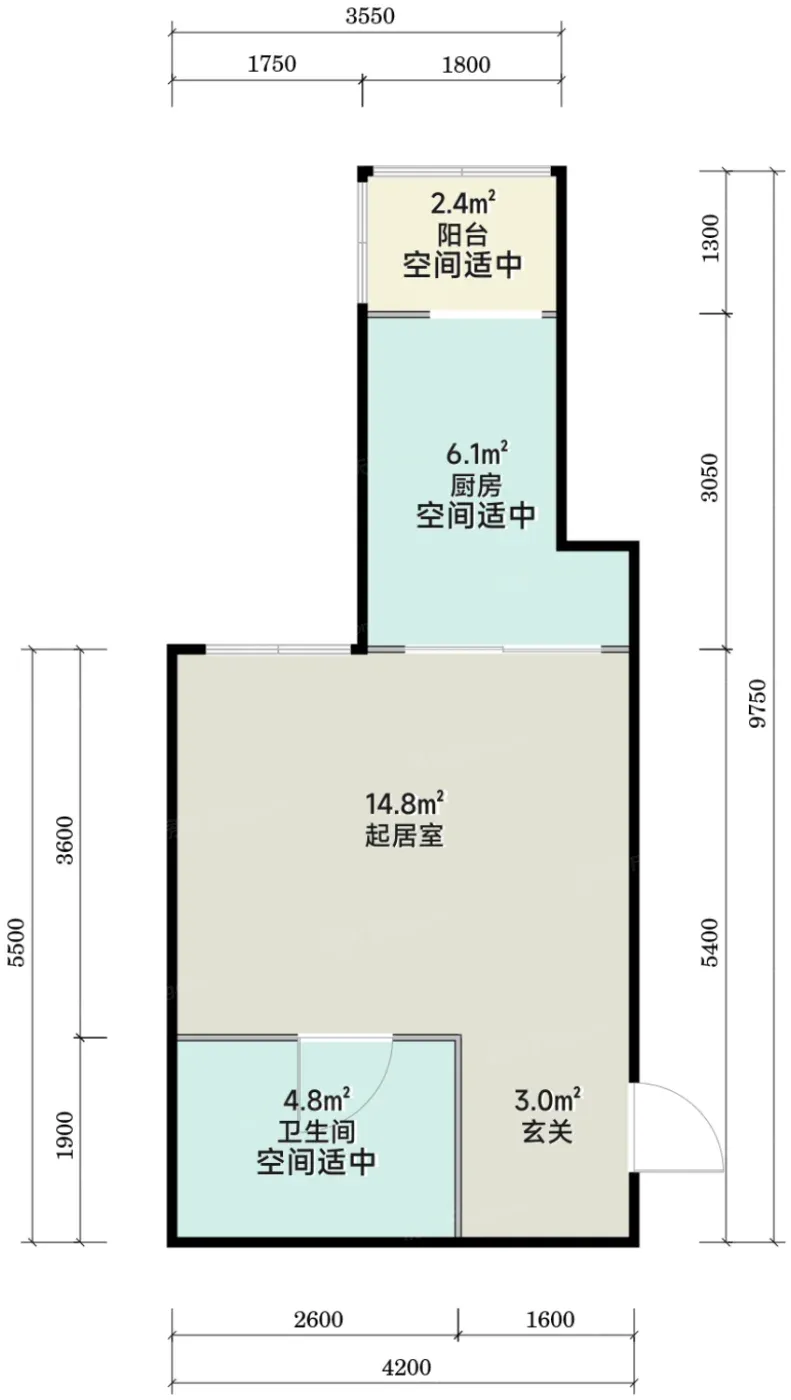
【户型迷局】79㎡已是项目最大户型,38㎡实得面积比酒店式公寓还紧凑。样板间用单面采光+全屋镜面制造空间感,实际生活储物空间捉襟见肘,双人沙发都放不下标准三人位。

【居住真相】6.25容积率碾压同地段豪宅,每层28户配置的电梯早晚高峰绝对酸爽。项目虽带30%绿化,但中央园林实际是退台绿化+立体盆栽,健身步道实探仅百米闭环。

【学区暴雷】和平一校学区需同时满足户口+房产+无和平区其他住房,外区户籍要特别注意"人户合一"核查机制。2025年入学需在明年3月前完成网签备案,期房交付存在时间差风险。

不过对于急需学区门票的家庭,现房交付确实解了燃眉之急。总价90万就能在五里河商圈上车,双地铁+万象城配套实打实存在。只能说金廊时代是杯特调鸡尾酒——学区刚需的救命药,改善家庭的后悔药。

该内容疑似使用AI技术合成,请谨慎甄别

编辑于2025-06-24 沈阳

投诉
#沈阳学区房真相 #小户型避坑指南 #和平区买房攻略 #现房风险解析 #新生代置业陷阱
说点什么…