1/4
田小桃和王大力
关注

拙政江南:在姑苏老城门里,找到现代人的园林答案

听说最近苏州热搜榜前三的楼盘,有个名字特别有意思——住着拙政园北门的「拙政江南」。上个月接待了位古建筑修复师王老师,他卖了上海两套房就为换这里的合院。问及原因,他说在虎丘修了二十年古宅,最痛心的就是看见苏式园林沦为游客打卡点。

去年拙政江南开盘当天,他看见沙盘上那些曲径通幽的檐角设计,发现开发商把耦园的「山水廊桥」搬进了社区。最妙的是地下层做了恒温酒窖,地面却保留了原生的香樟树阵。这种「新旧共生」的设计,击中了他多年修复古建时「修旧如旧」的职业坚持。

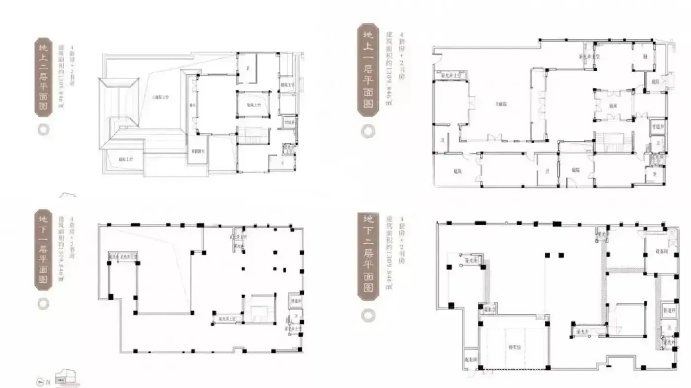
住在平江路的原住民都知道,这片土地过去二十年拆了建建了拆。但拙政江南硬是在0.6容积率里塞进32栋纯中式合院,每户标配的月洞门都要请香山帮匠人手工雕三天。有人嫌总价4000万太贵,可对于既要园林意境又要地暖新风的新生代家庭来说,能在拙政园800米内拥有私家水榭,或许就是最奢侈的日常。

当你在纠结选老城烟火气还是新城便利性时,那些真正懂姑苏的人,早就在寻找现代与传统的第三种解法。

该内容疑似使用AI技术合成,请谨慎甄别

编辑于2025-05-29 苏州

投诉
#苏州别墅 #文化传承 #园林住宅 #姑苏核心区 #低密社区
说点什么…