1/7
住宅数据局
关注

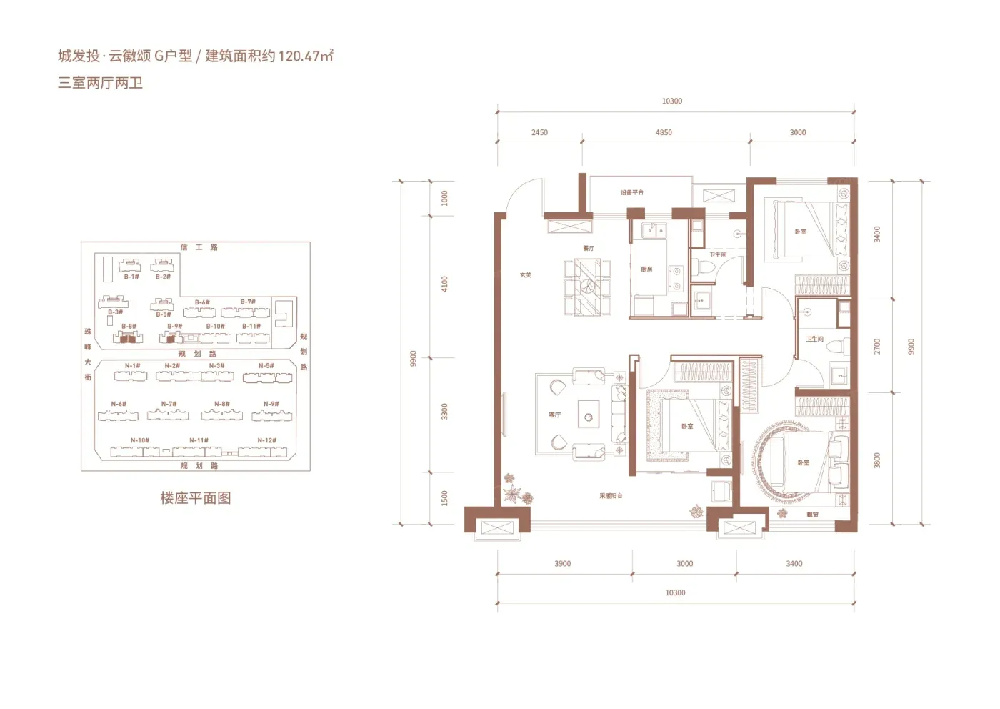
石家庄南二环|城发投·云徽颂:打着改善旗号的"宝藏盘"真没暗坑?

在售楼部遇到周周时,她正为二胎换房犯愁。这家国企盘120㎡四叶草户型让她心动,但厨房单窗设计却让她纠结——这像极了我们选房时的真实困境:真有完美的改善房吗?

【种草点】学苑路+南二环双buff,带装修省心程度拉满!实测中仰陵站步行10分钟真能到,遛娃直接冲小区35%绿化园林。国企背书+2.0容积率确实香,隔壁融创未来中心建好估计还能蹭商圈。

【拔草点】2027年交房要等三年半!北侧在建项目现在看像水泥森林,低楼层可能有灰。样板间衣帽间看着大,实际交付少组柜体得自己加。重点班的学校目前还没挂牌,建议等官宣。

城发投这次把云系产品玩明白了:动静分区比老牌改善盘更彻底,主卧带7㎡飘窗能改咖啡角。但真想买建议早晚各来趟周边——早晨听工地交响曲,晚上测学苑路飙车党噪音,这样的生活场景测评才真实。

你家选改善房时,是不是也在"眼前便利"和"未来溢价"间反复横跳?毕竟住进去的是每天的生活,不是规划图上的饼啊...

该内容疑似使用AI技术合成,请谨慎甄别

编辑于2025-11-06 石家庄

投诉
#城发投云徽颂 #石家庄南二环改善房 #高新区品质住宅 #学苑路新房测评 #国企开发楼盘 #主城低密社区
说点什么…