1/7
大大泡泡糖呀
关注

保利誉滨江:上海滩最后一块江景拼图?

最近业内都在疯传"江景房要重新定义",我跟着工程部的老张去实地勘察。这个在定海路铺开的项目,硬是把江景门槛从300平打到了119平,像程序员小李就徘徊在样板间:"去年看中某滨江大平层,首付缺口200万,现在这119平三房居然能做双套房..."

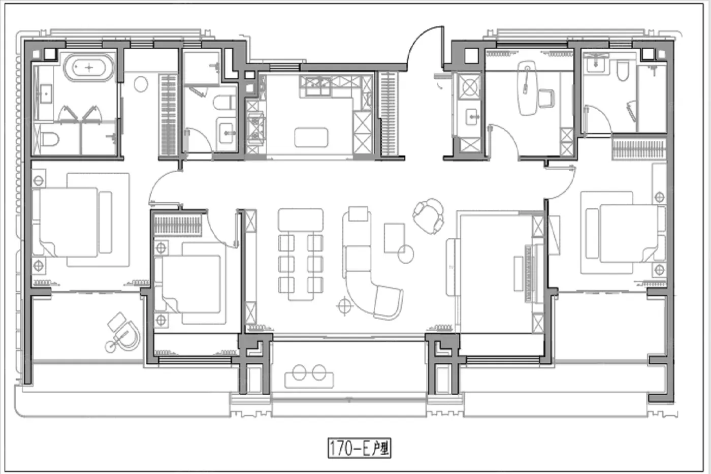
真正让我惊讶的是户型实得率。看过170平户型样板间,主卫洗手台竟藏着可拆卸设计。"开发商把墙体模数化处理,未来能根据二胎三胎需求重组空间。"现场工程师展示的模块化方案,像乐高积木般灵活。不过交房要等到2028年,确实考验耐心。

东外滩的蜕变更值得关注。杨浦滨江段的产业导入速度远超预期,某国际设计事务所已签约入驻。配套方面,步行730米到爱国路站,周边在建的商业综合体明年就将封顶。但要注意复兴岛站823米的实际步行路线需绕行,通勤族最好实地走一遍。

每个追求品质生活的人,都值得被认真对待。当江景不再只是富豪标签,当户型开始为十年后的生活留白,这样的房子不止是栖身之所,更是与城市共同生长的容器。

该内容疑似使用AI技术合成,请谨慎甄别

编辑于03-07 上海

投诉
#保利誉滨江 #东外滩新房 #江景住宅 #杨浦滨江 #品质生活 #新生代家庭
说点什么…