1/10
城市发展观
关注
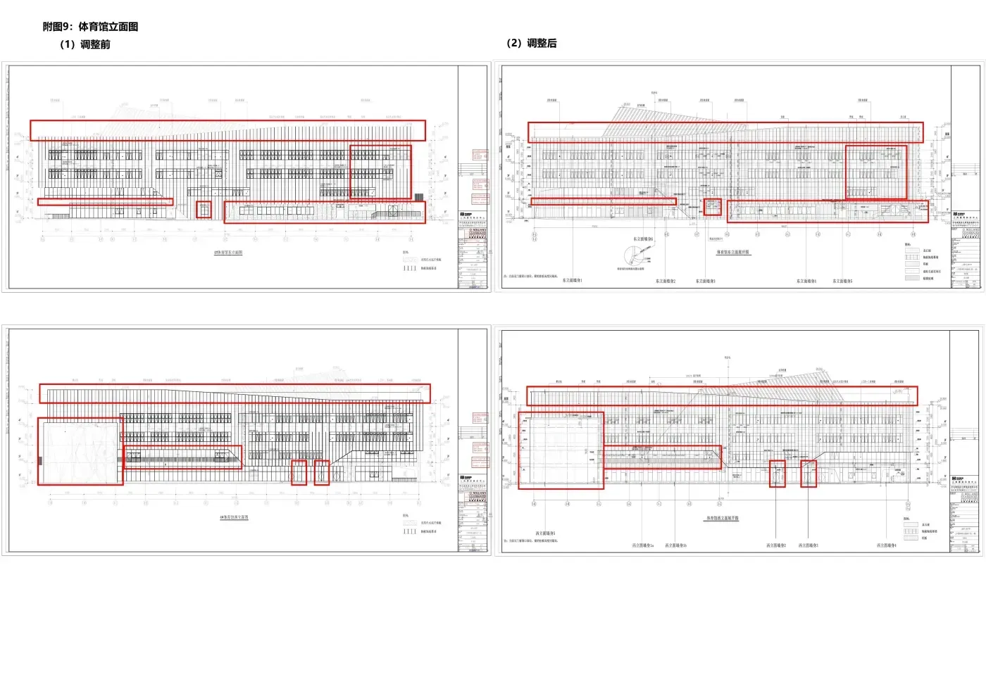
上中国际奉贤分校新建工程(一期)项目建设工程规划许可证调整公示
02-24 上海
投诉
#上海规划
#城市发展
#奉贤规划
说点什么…
点赞
评论