1/18
城市发展观
关注
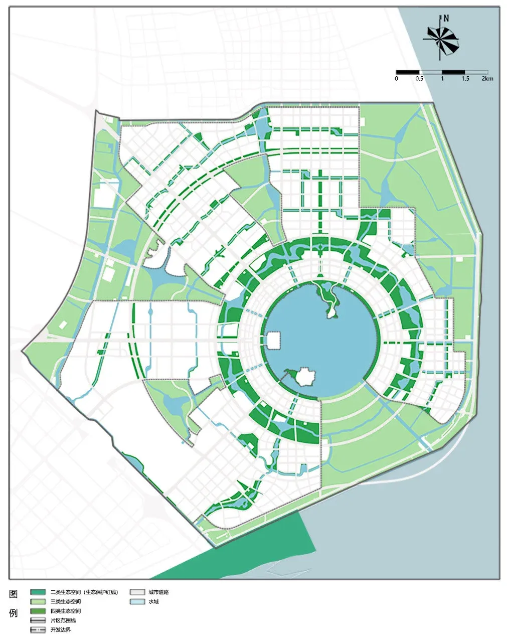
中国(上海)自由贸易试验区临港新片区滴水湖核心片区单元规划 ?(含重点公共基础设施专项规划)
编辑于2025-11-13 上海
投诉
#上海规划
#区域规划
#浦东规划
#临港新城规划
#临港主城区规划
说点什么…
点赞
评论