1/3
城市发展观
关注
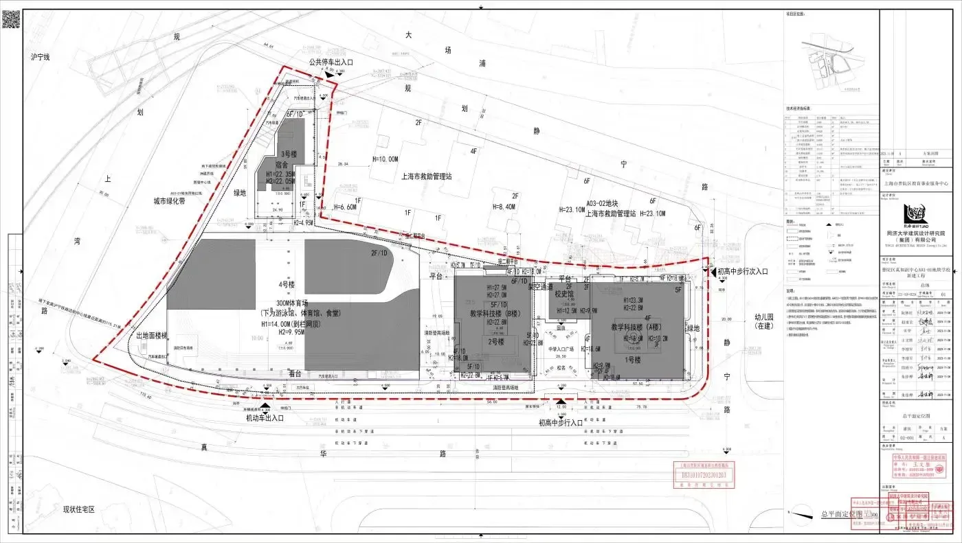
关于审定普陀区真如副中心A03-01地块学校新建工程建设工程设计方案的决定
2025-11-13 上海
投诉
#上海规划
#城市发展
#普陀规划
#真如规划
说点什么…
点赞
评论