1/8
城市发展观
关注
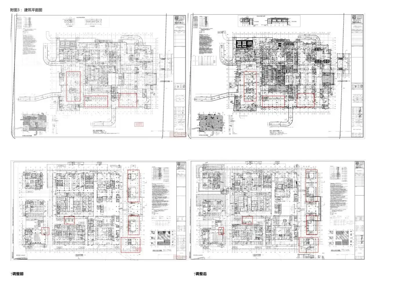
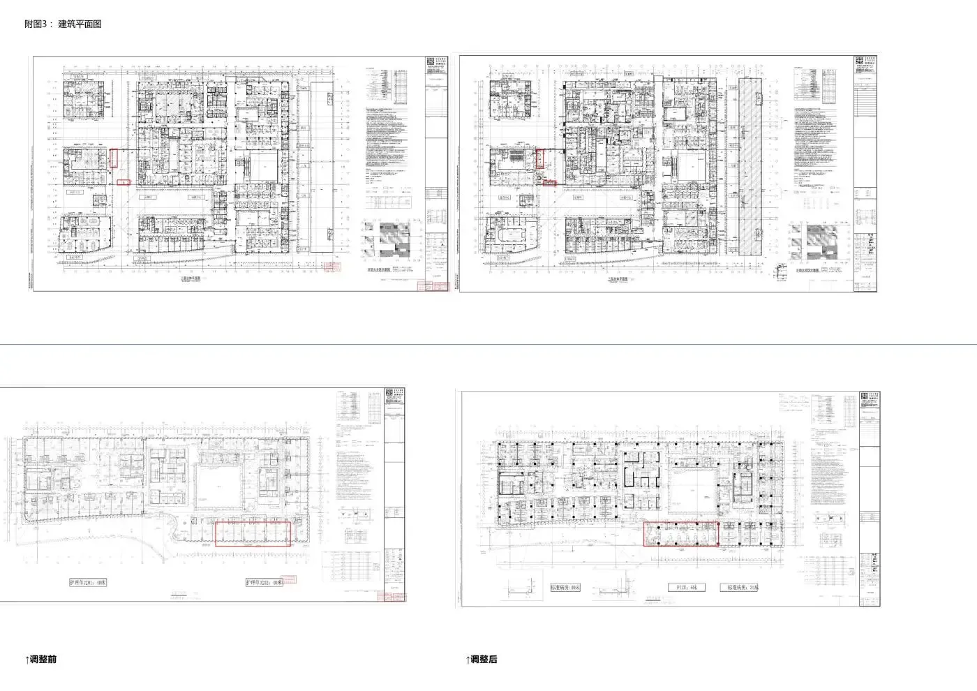
上海交通大学医学院附属新华医院奉贤院区项目新建工程建设工程规划许可证变更公示
2025-11-13 上海
投诉
#上海规划
#城市发展
#奉贤规划
#庄行规划
说点什么…
点赞
评论