1/2
月月
关注

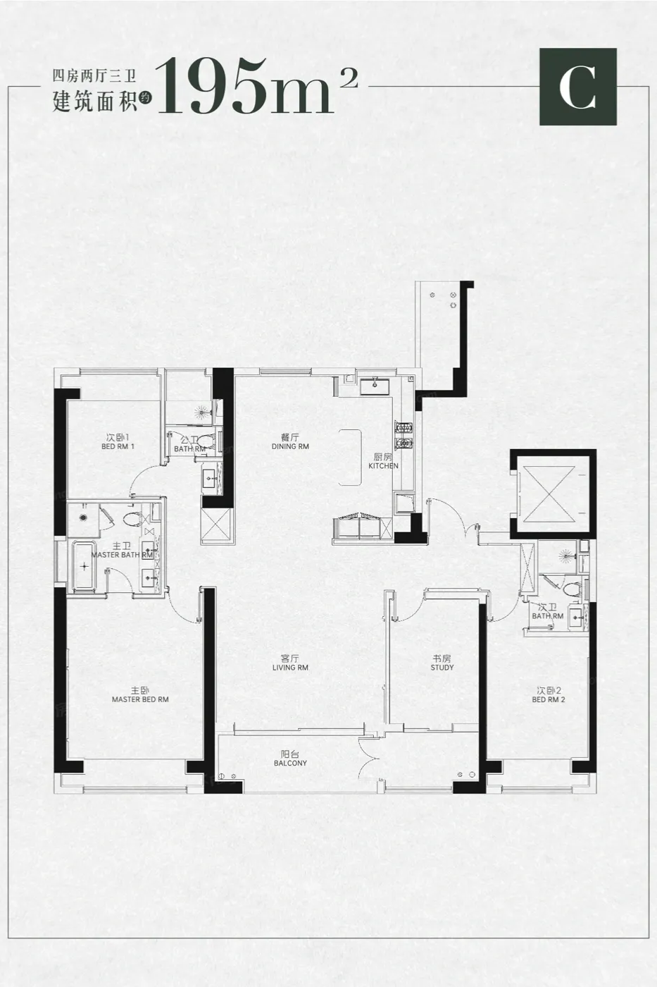
浦江园C户型🔑四室两厅三卫,带主卧卫浴✨

🏠【浦江园】位于东至半淞园路,南至南车站路,西至中山南路,北至苗江路,地理位置得天独厚🌟。这个楼盘主打高端住宅,周边配套设施齐全,交通便利🚇。最近它推出了一个新的户型——C户型,吸引了众多购房者的目光👀。C户型建筑面积195㎡,四室两厅三卫,方正的户型设计加上主卧自带卫浴,简直是家庭理想居所🏡。

📐C户型,主要亮点如下:

1️⃣ **户型方正,空间利用率高**:195平方米的建筑面积,四室两厅的布局非常合理,毫无浪费空间,家庭成员各得其所🏡。

2️⃣ **主卧带卫浴,私密性强**:主卧自带独立卫浴,不仅提升了生活品质,还增加了私密性,生活更方便舒适🚿。

3️⃣ **三个卫生间,避免高峰期尴尬**:三个卫生间的设计避免了早晚高峰期家庭成员使用卫生间的冲突,提升了生活效率与舒适度🚽。

👀如果你也在寻找一个方正的四室大户型,不妨来看看浦江园的C户型,或许这就是你梦寐以求的家园呢?✨

2024-07-10 上海

投诉
说点什么…