1/6
房圈选筹家
关注

515万在曹路能买到啥?业主群炸锅了

「这飘窗能改咖啡角?」看完样板间,闺蜜当场掏出手机拍户型图。涌潮府这个外环新盘,正用细节颠覆刚需想象。

实测发现三大真香现场:

1️⃣ 教育配套王炸:家门口在建幼儿园+九年制学校,24年开学倒计时。对比周边二手老破小,新校舍的硬件直接碾压

2️⃣ 户型暗藏玄机:87㎡三房飘窗自带阳光滤镜,实测放咖啡机+杂志架刚好。主卧L型衣帽间秒杀传统衣柜

3️⃣ 生活半径超能打:实测步行8分钟到金海商业广场,盒马生鲜和星巴克已成业主遛娃据点

要说不爽的点:26年交房确实考验耐心,但想想同期竞品都在外环边边角角,这个位置配上国企开发商,算外环线难得的六边形战士。

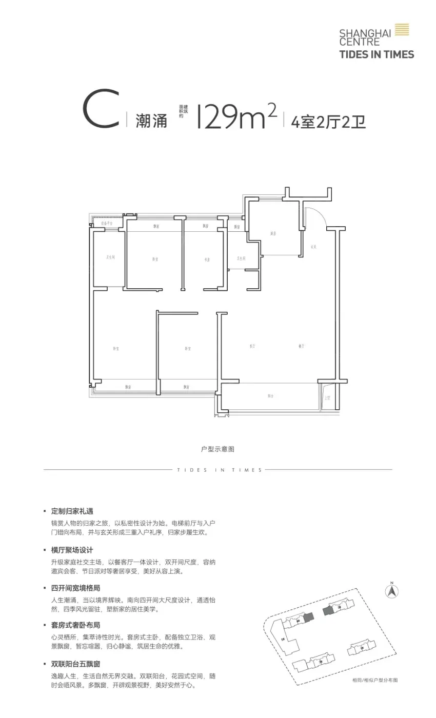
真相是:不是每个新盘都能让你用煎饼果子的预算,吃出brunch的仪式感。建议重点考察129㎡四房,那个中西双厨设计堪称小户型偷面积教科书。

该内容疑似使用AI技术合成,请谨慎甄别

编辑于2025-06-03 上海

投诉
#上海新房测评 曹路生活圈 户型改造灵感 教育配套解析 生活美学空间
说点什么…