1/4
付立学
关注
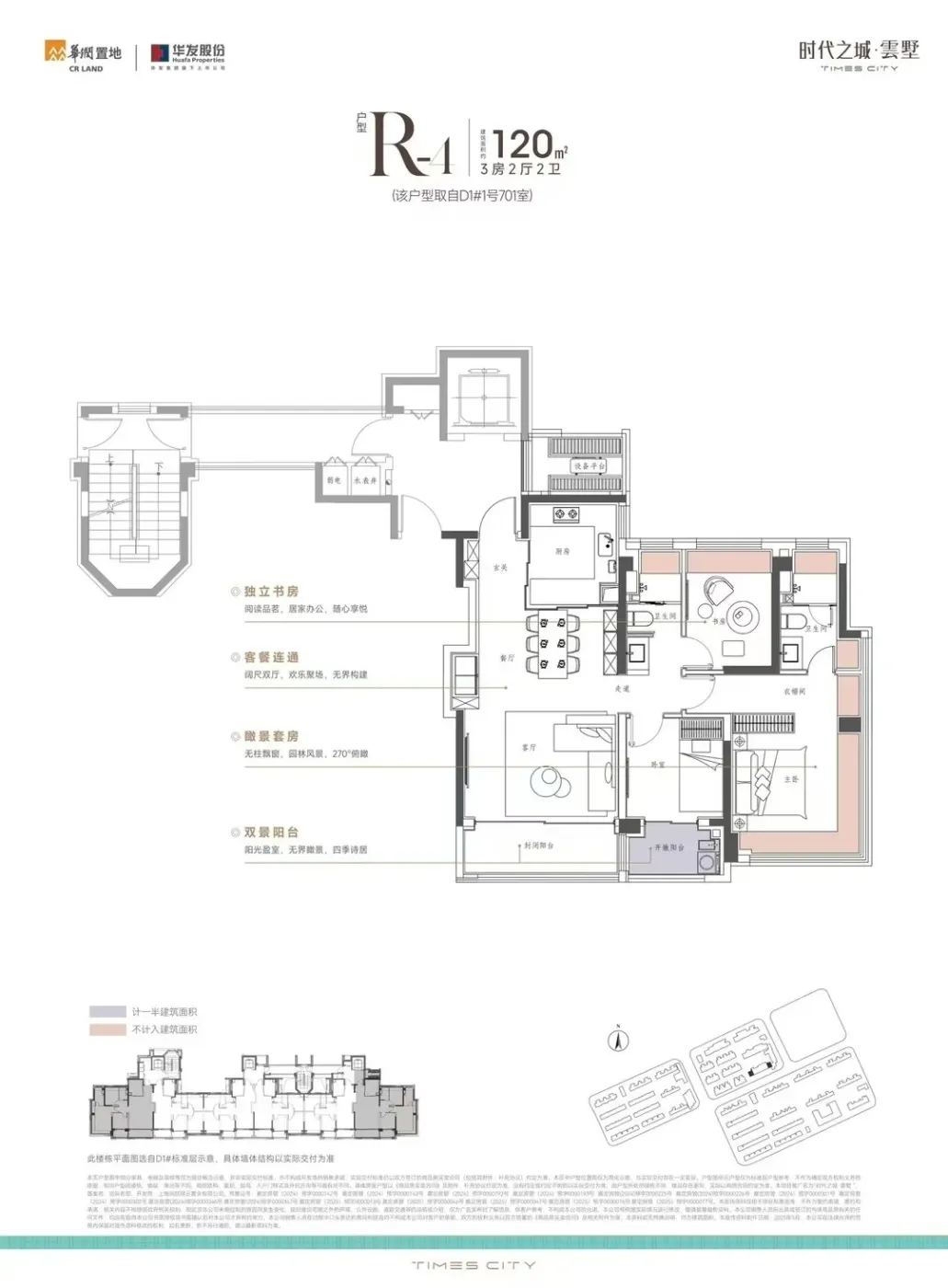
时代之城部分户型少量房源,欢迎咨询
2025-05-30 上海
投诉
#新房探盘
#购房优惠
#户型解析
说点什么…
点赞
评论