1/4
楼市内幕说
关注

524米地铁房实测!绿城·沁香园这些细节藏雷?

听说江湾镇最近有个魔幻现场——300组家庭冒雨排队只为看个飘窗?跟着导航冲进绿城·沁香园现场,发现这届品质生活者早就不吃"地铁房"老套路了。上周陪95后闺蜜踩盘,她举着分贝仪测噪音的样子像极了科研现场。

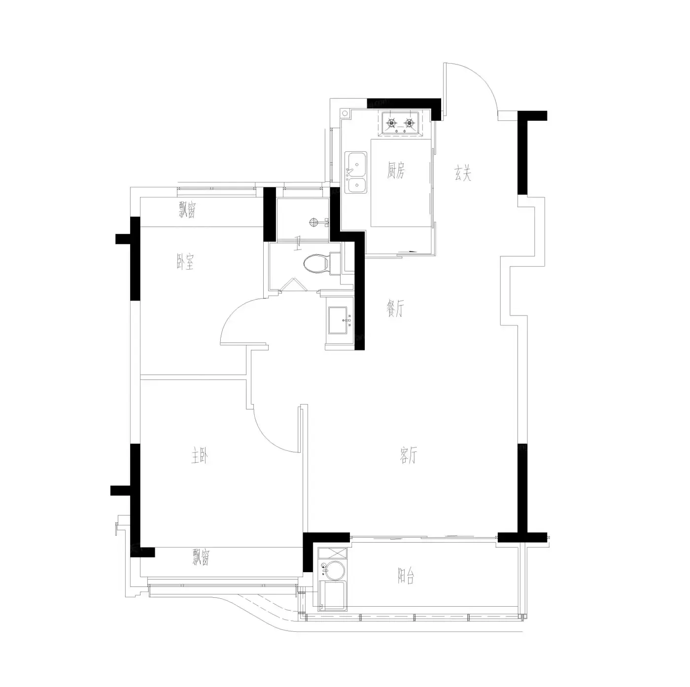
从万安路436弄南门出发,实测7分12秒走到江湾镇地铁站,比开发商宣传多出1分半钟。更绝的是85㎡三房样板间,L型飘窗实测进深58cm根本放不下标准咖啡机!但必须承认社区动线确实能打,儿童区到香草园特意做了缓坡设计,推婴儿车不用抬上抬下。周边配套倒是真·结界模式,出小区右转碰见彩虹湾商圈,左转直通虹口实验幼儿园,但实测骑行到彩虹湾公园要17分钟。

当看到社区底商预留了管线机接口,突然理解为什么年轻人愿意等2027年交付。这种把生活场景拆解成分子级的操作,或许就是当代通勤族要的确定感。你的日常通勤动线,是否也暗藏这种"空间折叠术"?

该内容疑似使用AI技术合成,请谨慎甄别

编辑于2025-05-18 上海

投诉
#上海房产测评 #地铁房真相 #户型避坑指南 #虹口新房 #生活动线设计
说点什么…