1/4
糖糖额喔喔
关注

3公里生活圈实测|浦江园业主的凡尔赛日常

给浦江园做生活力测评真是甜蜜的烦恼!从社区侧门出发:

✅步行15分钟覆盖5个地铁口

✅3公里内集齐外滩源早午餐、新天地买手店、董家渡老裁缝

✅转角遇见正在改造的滨江艺术公园

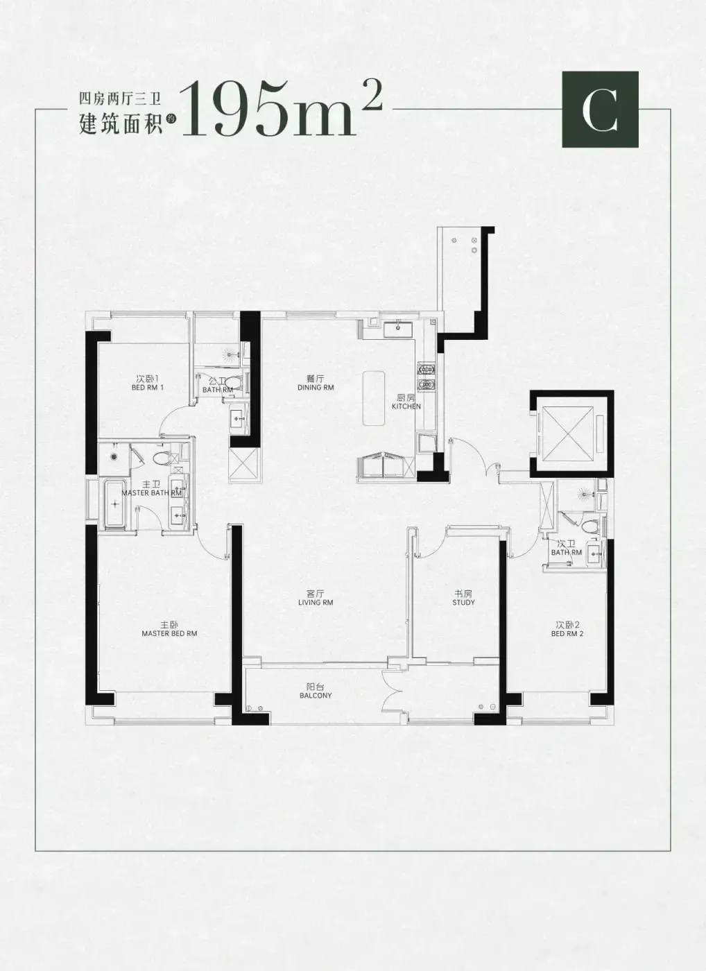
实测最惊喜的是社区自带「折叠式」生活动线:地下车库直通商超的生鲜冷链区,楼上住户拿快递居然能走带空调的专属通道!最近发现195㎡户型能把儿童游乐区、老人茶室、年轻人电竞房做成「三明治空间」,三代人互不干扰又能随时互动。

重点夸夸他们的环形景观阳台!亲眼看见邻居把整面墙做成可开合玻璃,暴雨天躺在沙发上就能看江水奔涌。现在终于理解为什么老业主说"住这里会得选择困难症"——每天睁眼就要纠结是去江边晨跑,还是坐两站地铁吃国际饭店蝴蝶酥。

该内容疑似使用AI技术合成,请谨慎甄别

编辑于2025-05-09 上海

投诉
#魔都生活圈 #户型空间革命 #多代际居住
说点什么…