1/4
买房实战派
关注

内行人揭秘:高得房率背后的空间魔法

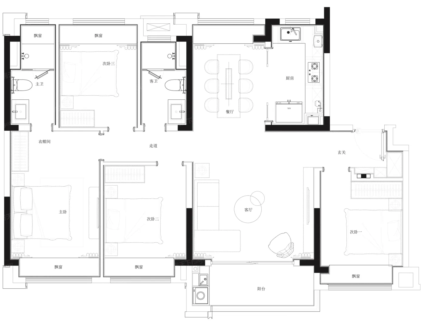
干了十年房产设计的我,今天必须给这个项目点个赞!中企云启春申的80%得房率可不是简单的数字游戏,而是实打实的空间优化。他们采用了创新性的剪力墙结构,把传统墙体厚度压缩了15%,光这一项就能多出2-3㎡使用面积。

更绝的是他们的飘窗设计,全部做成可拆除结构,交房后能直接拓展出0.8米进深。算下来127㎡户型光飘窗就能多出5㎡实用空间,相当于白送个小书房!这种设计在保证结构安全的前提下,把空间利用率做到了极致。

不过要提醒大家,高得房率≠居住舒适度,还要看整体规划。这个项目2.0的容积率和35%绿化率搭配得刚刚好,既保证了楼间距,又留足了公共活动空间。最近有购房计划的朋友,建议重点关注这类"真高得房"项目,真的是用设计创造价值!

该内容疑似使用AI技术合成,请谨慎甄别

编辑于2025-03-30 上海

投诉
#房产知识 #户型解析 #空间设计 #购房技巧 #居住升级
说点什么…