1/5
无视易大师
关注

保利天珺是智商税吗?亲测爆款户型的AB面

听说青岛楼市最近有个怪现象——预算300万买小两居的年轻人,一半在翻新老破小,另一半挤破头抢保利天珺。实测这个新都心网红盘后,我发现真相藏在细节里...

👉硬核优点直击:

长沙路地铁口215米的通勤优势真香!实测从6号楼出发,步行4分钟进地铁闸机。下班拐进和达中心城买杯咖啡,周末步行10分钟到凯德MALL看电影,这对都市懒癌患者太致命。

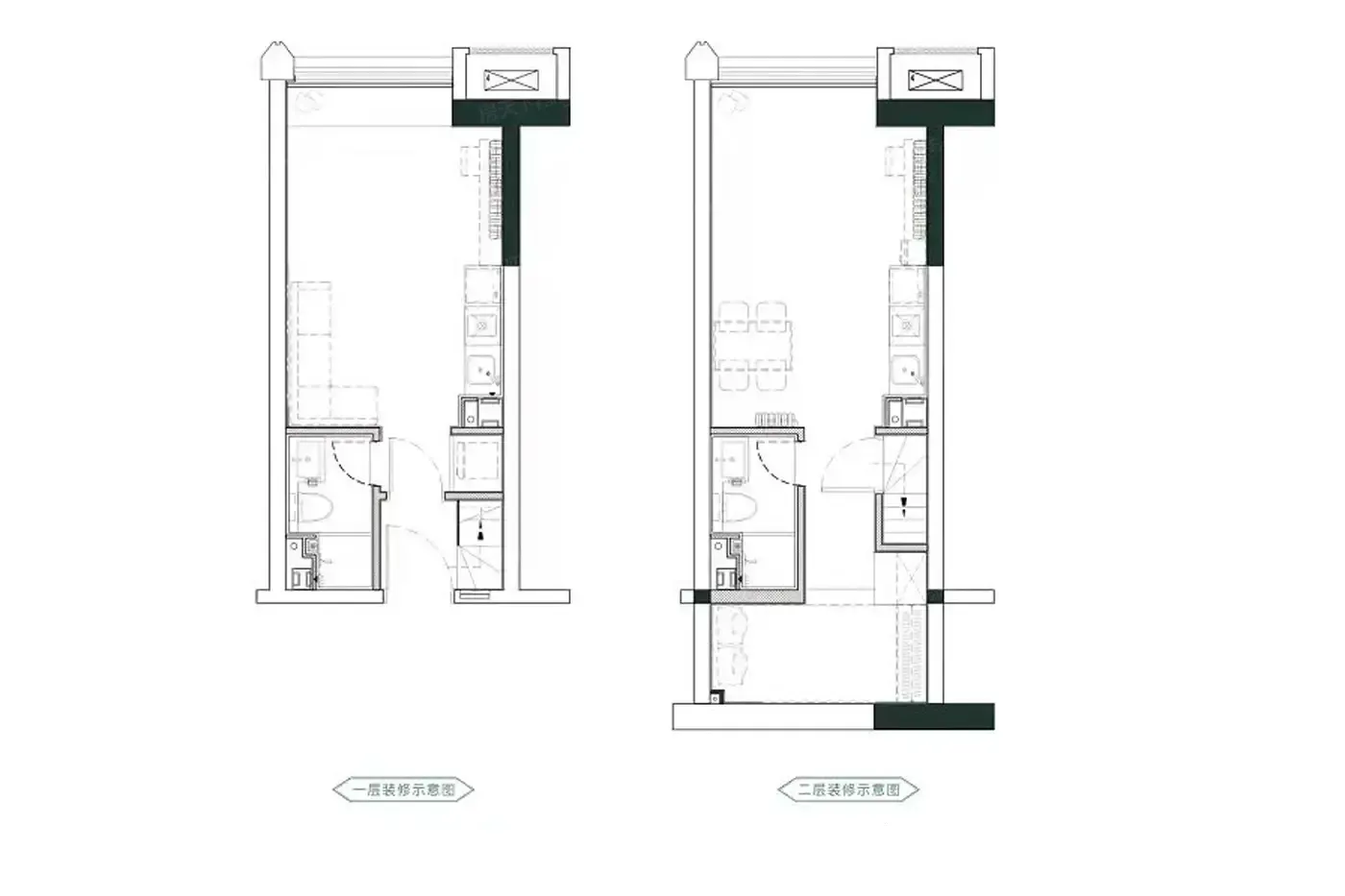
⚠️暗藏生活痛点:

43㎡的魔方一居室实测套内仅31㎡,咖啡机+投影仪+健身区只能三选二。高容积率下的3.3密恐指数,建议实地观察下午三点后的光照情况。对比隔壁青铁安澜地的79㎡三房,户型实用主义见分晓。

有人说它是新贵入场券,有人吐槽是精致穷陷阱。要我说,能接受在中央空调外机轰鸣中练瑜伽的,才配得上3万/㎡的仪式感。毕竟真正的品质生活,从来都是取舍的艺术。

该内容疑似使用AI技术合成,请谨慎甄别

编辑于2025-07-07 青岛

投诉
#青岛楼市 #新都心探盘 #地铁房测评 #户型设计 #生活场景
说点什么…