1/7
小小萝卜条
关注

海曙西改善族看过来|保利·明州瑧悦府真实测评

最近宁波楼市有个怪现象:一边是刚需盘疯狂内卷,另一边海曙西冒出的改善盘,却让本地人集体沉默。今天实测保利这个新盘,发现它可能成为区域分水岭。

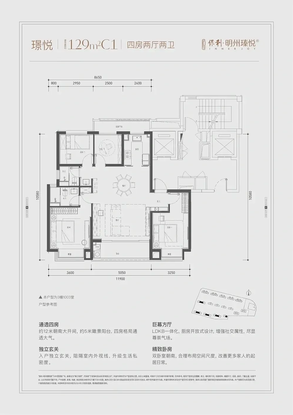
🟡户型设计的AB面

建面104-148㎡的改善户型,大开间+短进深是真香。飘窗咖啡角改造空间大,主卧套房能塞下独立衣帽间。但部分户型动静分区不够彻底,厨房动线需优化。

🟢配套碾压式存在

海曙西唯一户外泳池太犯规!蓝宝石池面+观星躺椅,比网红民宿还出片。10大主题架空层里,棋牌室和健身房最抢手。不过泳池维护成本高,后期物业费可能小贵。

⚪央企的隐藏彩蛋

保利背书确实稳,地库仿云石吊顶比某些楼盘大堂还精致。但2026年交房周期略长,周边薛家南路早晚高峰堵车预警。

总结给纠结的朋友:

√ 适合地缘改善客,特别是需要学区+商业的

× 投资属性弱,纯自住逻辑更稳妥

想了解具体户型改造方案的,欢迎评论区交流~

该内容疑似使用AI技术合成,请谨慎甄别

编辑于2025-06-07 宁波

投诉
#宁波买房 #海曙西改善盘 #户型设计 #生活配套 #央企楼盘
说点什么…