1/3
大气泡泡
关注

余姚低密生活真相|上品华府215㎡测评:三代同堂的体面与妥协

"住这里孩子能读兰江小学?"闺蜜发来户型图时,我正盯着客厅飘窗出神——这个能改咖啡角的2米飘窗,比老家同学家的大平层玄关柜还宽。

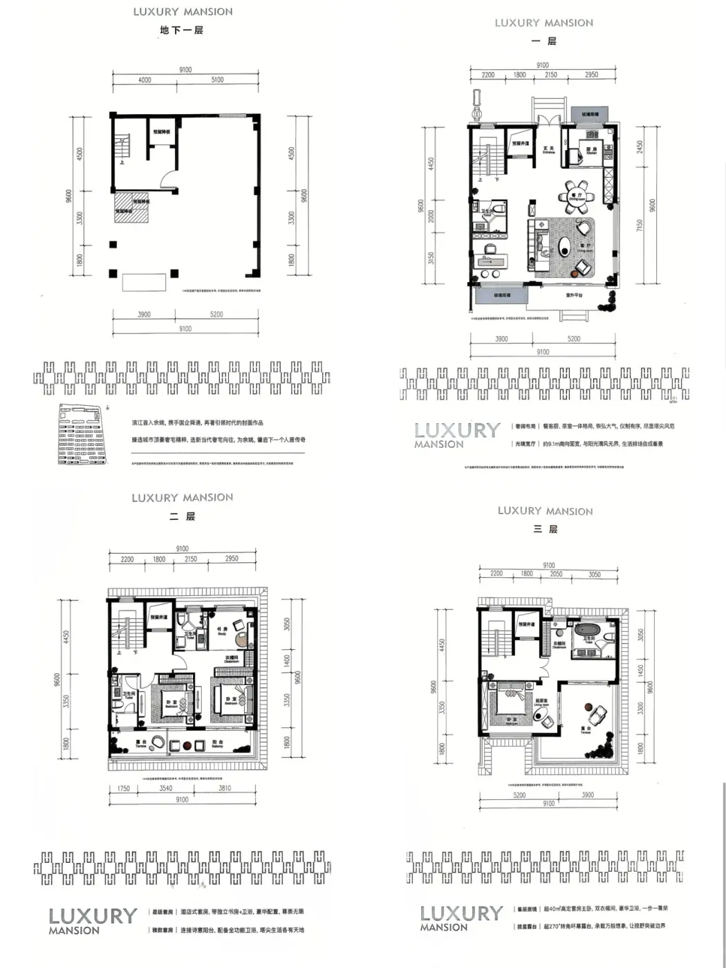
实测上品华府215㎡户型:

✅1.3容积率+30%绿化,在余姚主城实属稀有物种。L型厨房接6米双阳台,三代人洗晒动线完全分离

✅主卧套间堪比酒店行政房,配独立衣帽间和双台盆,二胎家庭凌晨抢卫生间的痛这里不存在

⚠️但文秀路早晚高峰拥堵严重,城东路大货车频繁,阳台观景需做好隔音准备

发现有趣现象:余姚4万+项目里,凤鸣云庐用泳池会所收割年轻人,这里用7.2米横厅+三面采光打动多胎家庭。当飘窗遇见落地窗,不是空间的较量,是生活态度的分水岭。

住在城东的老余姚人都懂:这里没有五彩城的热闹,但下楼300米就是兰江小学的早读声,转角菜场的茭白带着露水——这才是老城烟火该有的样子。

该内容疑似使用AI技术合成,请谨慎甄别

编辑于2025-06-05 宁波

投诉
#余姚买房攻略 #低密社区测评 #改善型住宅 #三代同堂户型 #城东学区房
说点什么…