1/8
李刚
关注
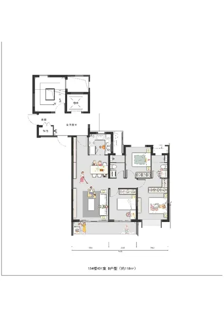
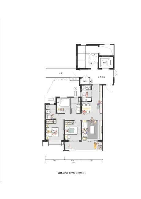
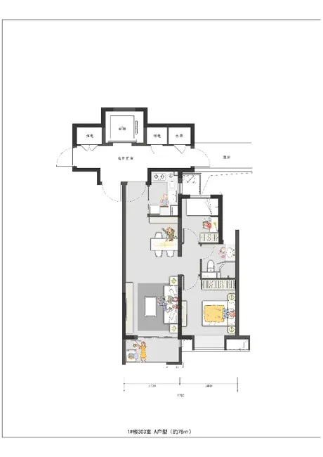
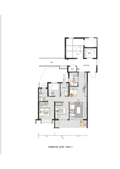
户型图来咯
最小79 最大139 、江北区唯一一个满足刚需跟改善的项目
2025-02-13 宁波
投诉
#我和我的楼盘
说点什么…
点赞
评论