1/4
安娜贝尔anna
关注

9999元/㎡能买到双套间+6米露台?

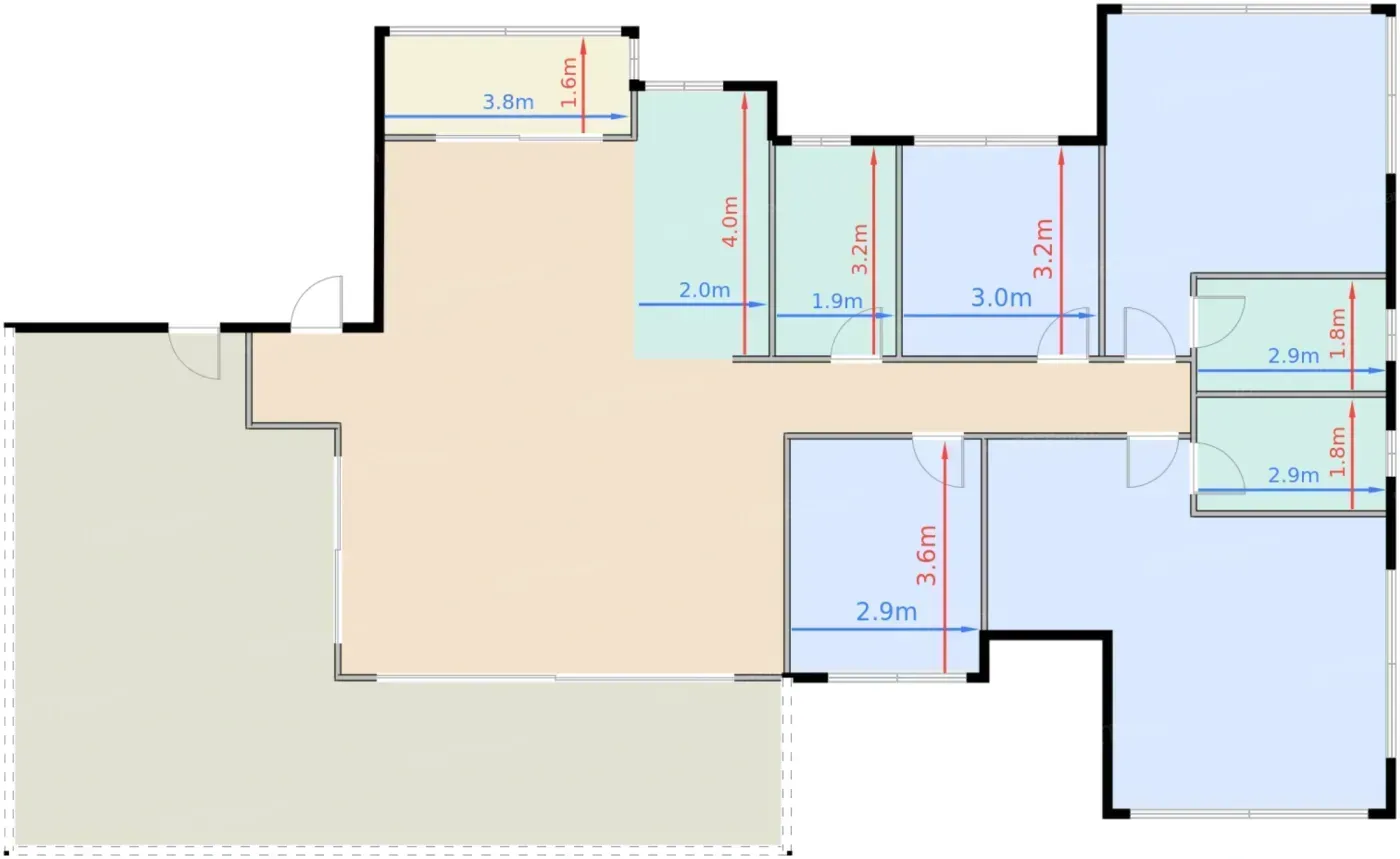
当三代人同住一个屋檐下,怎样的户型才能承载不同的生活方式?上周实地探访骏景湾品悦时,偶遇正在看房的阿May一家。二胎妈妈+退休父母+学龄儿童的家庭结构,让他们的居住需求充满矛盾:既要双主卧的私密性,又得兼顾儿童活动区的开放性。

项目新推的171㎡户型确实让人眼前一亮。双套间设计实现两代人的独立起居,6米挑高露台意外成为全家人的情感纽带——老人种花、孩子涂鸦、妈妈煮咖啡,三代人的生活习惯在垂直空间自然分层。但要注意的是,2.92的容积率让部分低层住户的窗外视野略显局促,建议实地考察采光情况。

值得关注的是动静分区的精妙处理。厨房与露台组成的洄游动线,让备餐和取食材形成闭环;儿童房刻意远离老人房的设计,避免作息时间冲突。这些细节让我想起日本建筑师中村好文说的:"好户型会主动适应居住者,而非相反。"

正如你在寻找既能保留个人空间、又能维系家庭温度的房子,骏景湾品悦的户型设计恰好诠释了这个时代家庭的真实需求。那些看似简单的双开门和飘窗转角,或许藏着改善家庭关系的密码。

该内容疑似使用AI技术合成,请谨慎甄别

编辑于01-06 江门

投诉
#骏景湾品悦 #鹤山楼盘测评 #四房户型解析 #家庭居住空间 #生活场景设计 #江门新房
说点什么…