1/10
北卫
关注

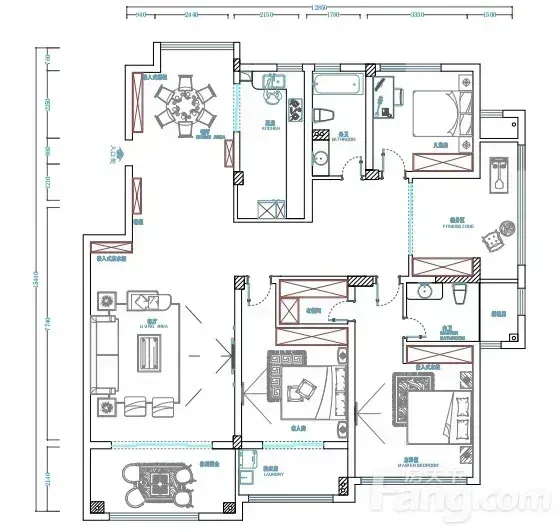
靖江 自在城 4室2厅 201.00㎡ 238万

标题:自家2018年精装四居室急售!🏡

正文:

忍痛割爱!💔 这套2018年建的自在城四居室,是我和家人精心装修的温馨小窝,现在因为工作调动不得不转手~

✨ **核心亮点**:

- **地段超便利**:就在靖江一中正对面,接送娃、逛街买菜都超方便!

- **户型超能打**:201㎡南北通透大四居,主卧朝南带大飘窗,阳光洒进来超治愈~

- **楼层黄金段**:9楼(总高10层),采光无敌还不怕潮湿,电梯直达超省力!

- **性价比之王**:同小区同户型挂价都250w+,我家自住保养好,直接砍到238w!

🌟 **小区加分项**:

18年的次新房,物业负责,绿化像小公园🌳,邻居基本都是教师和上班族,超安静~

真心想找有缘人接手我家🏠,看房随时约!📲 (价格可小刀,但别屠龙刀哈~)

编辑于2025-09-27 靖江

投诉
说点什么…