1/3
王少华
关注
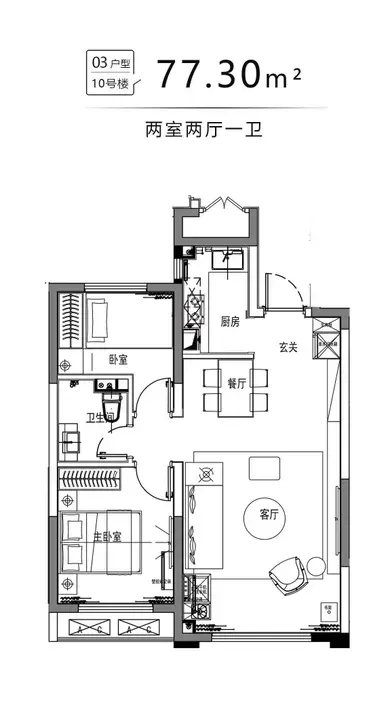
六期小户型房源有限
六期小户型房源有限
03-22 晋城
投诉
#楼盘介绍
说点什么…
点赞
评论