1/5
不是不可爱就是很可爱
关注

21162元/㎡现房暴击!我发现了城西「倒挂」新逻辑

“这房价,太魔幻了!”看完样板间,我当场订了云珹府。

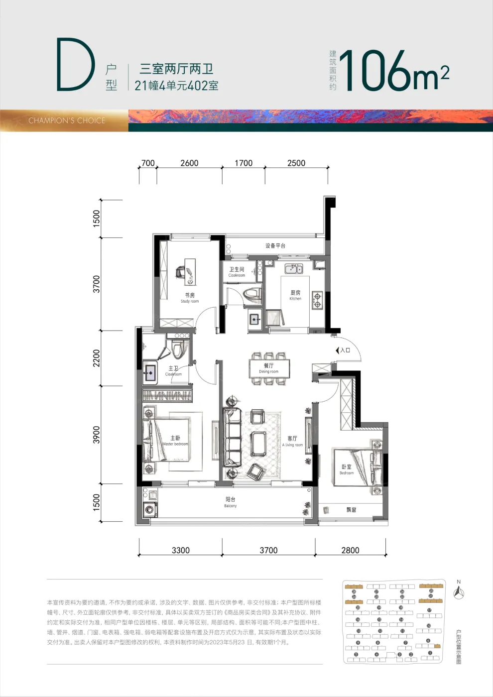
▌刚需里的「空间魔术师」敢信?同样总价在云城核心区只能买毛坯,这里精装现房还带中央空调+地暖!106㎡做四开间朝南,飘窗被改造出12个收纳机关,连玄关柜都藏着折叠换鞋凳。

但真相是:1⃣ 倒挂红利确实存在(隔壁精装限36100元/㎡)2⃣ 中法航空大学0距离,未来年轻教授可能成邻居3⃣ 滨江物业+圣都软装,现房直接拎行李箱入住

不过要泼冷水:地铁站步行1.2km,商业配套得等万象城落地。低密社区当前像孤岛,但阳台正对飞行学院操场,每天看飞机少年训练莫名治愈。

那些喊着「城西缺200万级现房」的年轻人,通勤西站15分钟和配套等三年,你选哪个?

该内容疑似使用AI技术合成,请谨慎甄别

编辑于2025-09-11 杭州

投诉
#杭州新房测评 #刚需购房指南 #现房优势 #滨江物业 #城西科创走廊
说点什么…