1/6
探房小郭
关注

天元怡水花园四期:衡水人抢着买,这些硬伤你敢不敢接?

听说最近售楼部被围观的楼盘,不是桃城新地王,也不是路北网红盘,反而是开发区的天元怡水花园四期!作为开发区连续上榜的热门选手,它的三大真相你必须知道:

1️⃣配套含金量确实能打!周边珍宝街小学+四中+怡水园三件套,下楼就是衡百国际商圈,隔壁就是公园跑道。但要注意2.49的容积率实际是中型社区密度,别被"低密"标签迷惑。

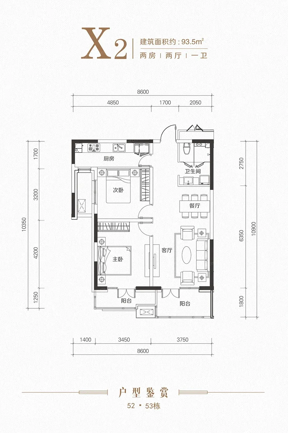
2️⃣8300元/㎡的起价看似良心,但别急着冲!横向对比路北区的上海公馆(9000元/㎡)确实有性价比,但纵向看这个盘2022年就交房,现在推的准现房在户型设计上不如新盘前卫,尤其是93㎡户型的动静分区有点迷。

3️⃣200㎡大平层和93㎡刚需房混住,圈层纯粹性存疑。虽然物业类型是纯住宅,但93-200㎡的面积跨度会让社区人群结构复杂,喜欢纯粹改善氛围的要三思。

最近朋友问我:买这里会不会站岗?我的答案是,对于需要马上入学的新生代家庭,这就是及时雨;但对追求纯粹改善的品质生活者,建议再等等。就像吃火锅配凉茶,需求匹配才叫真香!

该内容疑似使用AI技术合成,请谨慎甄别

编辑于2025-07-29 衡水

投诉
#衡水楼市 #买房攻略 #准现房评测 #教育配套 #性价比楼盘
说点什么…