1/6
房评君
关注

3万/㎡改善盘测评:地铁153米的装修房值吗?

“这阳台能放我的咖啡机和绿植吗?”当置业顾问秒开户型图时,我承认心动了。

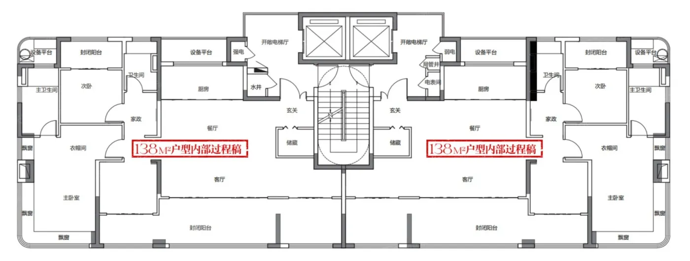
云缦·璞舍这套138㎡户型让我看到真实的生活可能:L型厨房接6米飘窗台,咖啡机与收纳柜刚好形成洄游动线。但实测发现次卧飘窗实际进深仅58cm,放不下常规书桌。社区1.6容积率给足喘息空间,不过西侧在建工地要等2027年才能拆净。

查完数据更纠结:包河区1.0万方成交量里它占大头,但总价386万的门槛比同板块伟星贵12%。地铁153米是真香,但早上出车库得排队3分钟。装修配置全套日立空调+汉斯格雅花洒,但交付时要盯紧墙面防裂工艺。

当看见邻居在阳台种满绣球花,突然明白:好房子不该被价格定义,而要看是否能生长出你想要的生活。

该内容疑似使用AI技术合成,请谨慎甄别

编辑于2025-08-19 合肥

投诉
#合肥买房攻略 改善住宅测评 地铁房实测
说点什么…