1/6
我有一个苹果和桃儿
关注

肥东唯一逆势上涨?伟星城真实居住体验大揭秘

听说最近肥东二手房均价跌破7000,伟星城却以8285元/㎡成交价杀出重围!这个让周边竞品直挠头的楼盘,真实生活体验到底如何?

实测发现三大真香定律:

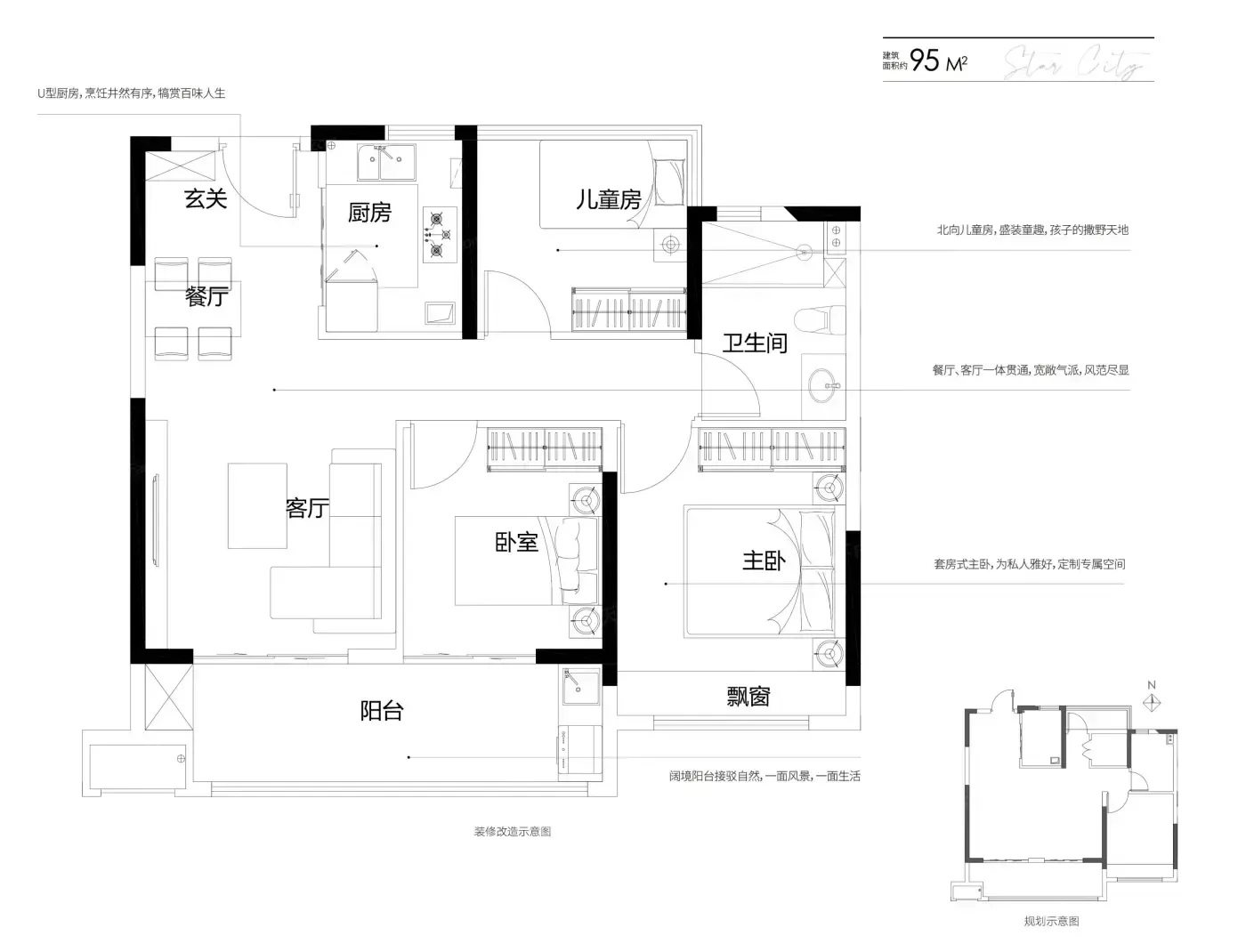
1️⃣飘窗咖啡角改造术:95㎡户型1.8米飘窗+山水路景观,早餐咖啡杯碰出都市轻生活仪式感

2️⃣双地铁生存指南:946米肥东站+889米和睦湖站,实测通勤滨湖节省12分钟换乘时间

3️⃣容积率反常识:2.0低密社区藏着40%绿化,但儿童游乐区与景观长廊间距仅15米

客观提醒注意:

❌得房率实测79%:142㎡户型实际使用面积约112㎡,次卧开间2.7米略显局促

❌商业配套进行时:社区底商入驻率60%,大型商超需依赖2公里外和睦湖商圈

从清晨飘窗咖啡到夜跑樱花步道,这里的生活容器确实装得下年轻人的小确幸。但若期待成熟商圈,建议同步关注正在建设的意禾阅湖源邸。毕竟房子装的是生活,不是面子。

该内容疑似使用AI技术合成,请谨慎甄别

编辑于2025-06-19 合肥

投诉
#合肥买房攻略 #肥东新房测评 #生活美学研究所 #户型改造指南 #地铁房评测
说点什么…