1/7
栖屿观月阁
关注

168㎡户型竟偷出110%使用率?政务区旁新盘实测真相

听说最近政务东的楼盘都在卷「空间魔术」?实测云缦·璞舍让我发现3个扎心事实:

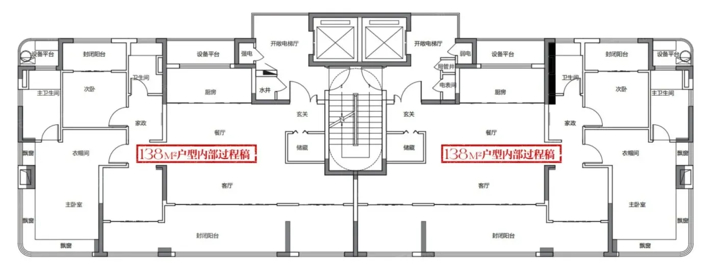
1️⃣ 阳台消失术真香!3.3米层高+全系四房,138㎡户型实得面积≈市面160㎡,厨房操作台还能秒变咖啡吧台,但开发商合肥轨道首次操盘高端盘,工艺细节还得看交付

2️⃣ 和政务区共享配套≠政务区,虽然金寨路对面就是万象城,但学区未定、地铁15号线还在规划,自带的体育商业体得等兑现

3️⃣ 新计容真能偷面积?168㎡户型用双飘窗+设备平台赠送,实得近185㎡,但3万+/㎡单价对比周边2.8万现房,性价比要看装修是否值回票价

要说最打动我的,是法式光幕立面的光影游戏——Low-e玻璃把政务区的天际线框成流动画作,下雨天在落地窗前煮咖啡,突然就懂了「容器生活」的真谛。

提醒:政务东今年15个新盘血拼,改善族别急着冲!实地看过外立面材质和周边铁路噪音再决定~

该内容疑似使用AI技术合成,请谨慎甄别

编辑于2025-06-16 合肥

投诉
#合肥房产测评 #改善型住房 #生活美学 #户型设计 #政务区楼市
说点什么…