1/5
龙脉抬头
关注

云缦璞舍:政务东的顶配,还是高架旁的隐痛?

听说最近合肥人分两种——看过政务东的和没看过的。作为包河区改善盘里的「地铁选手」,云缦璞舍138㎡起跳的户型直接踩中新生代家庭痛点,但真实居住体验到底如何?

【通勤党的春天vs声音敏感者的雷区】地铁5号线姚公庙站153米的距离,实测5分钟进站。对比隔壁某盘步行15分钟的尴尬,这里简直是打卡迟到星人的救赎。但西侧紧贴金寨路高架,深夜货车呼啸的震动波,可能让浅眠者集体破防。

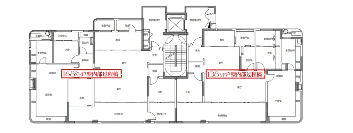
【空间魔术师的真功夫】105%的得房率不是吹的,11层洋房配置的168㎡户型,硬生生在书房和儿童房之间变出双飘窗。朋友看完直呼:"你家飘窗咖啡角比我客厅还大!"不过3.3米层高遇上地暖+吊顶,实测净高只剩2.85米,高个子建议现场比划。

住在政务东,亦是选择生活方式的开始。你愿意用5分钟通勤换偶尔的噪音彩蛋,还是守着静谧郊区每天上演通勤马拉松?房子是生活的容器,但容器里的声音由你定义。

该内容疑似使用AI技术合成,请谨慎甄别

编辑于2025-05-31 合肥

投诉
#合肥买房 #改善住宅 #楼盘测评 #生活美学 #政务东板块
说点什么…