1/6
恶微微
关注

万博广地花园测评 | 刚需家庭住进CBD生活圈的秘密

听说最近番禺楼市出现了价格倒挂怪象:距离万博CBD直线1.6公里,房价居然不到商圈核心区一半?这就不得不提今天要拆解的万博广地花园。

上周遇见95后夫妻小琳,他们在珠江新城上班却因预算受限,在黄埔科学城和番禺万博间反复横跳。当我带他们体验广地花园的楼巴专线后,故事出现了反转——每天30趟接驳巴士直通三大CBD,实测早上8:15分跳上车,8:45竟出现在珠江新城写字楼楼下。

项目真正的杀手锏是「折叠生活圈」设定:驾车8分钟到山姆超市囤货,步行15分钟直达珠江滨水长廊遛娃。不过需要提醒的是,步行到南村万博地铁站实测需23分钟,建议搭配小区楼巴使用更便利。虽然社区自带1万㎡商业体,但万达广场等大型商圈仍需短途接驳。

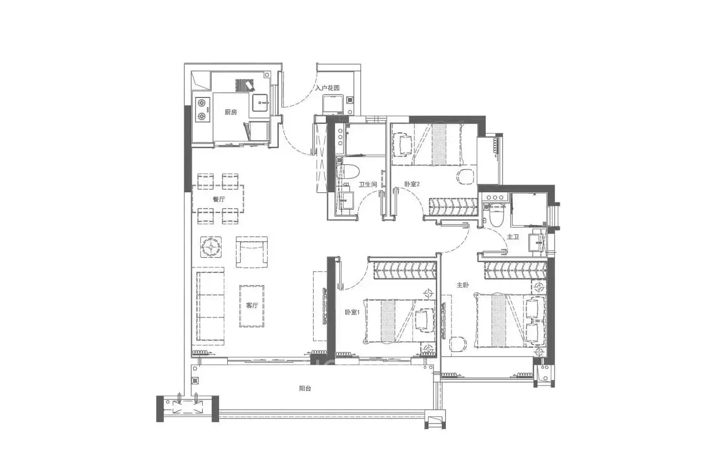
对于追求现楼交付的准业主有个彩蛋:全屋家私家电交付能省下15万装修款。但要注意138㎡户型动静分区稍显模糊,建议三代同堂家庭优先考虑朝南户型。在万博商圈的虹吸效应下,这里确实让新生代家庭用2.3万/㎡的代价换来CBD生活入场券。

真相是:没有完美的房子,只有契合的生活方式。当交通、配套、价格构成不可能三角时,广地花园用错位竞争给出了新解法——「在烟火气和商务范之间,找到自己的黄金分割点」。预算200万+的改善家庭,建议收藏这份现楼避坑指南。

该内容疑似使用AI技术合成,请谨慎甄别

编辑于02-01 广州

投诉
#万博广地花园 #番禺华南 #万博CBD #新生代家庭 #18号线 #现楼交付
说点什么…