1/7
浅唱仄止
关注

8.5万/㎡起!天河核心区竟藏"会呼吸"的豪宅?

"样板间走完一圈,我手机银行直接少了80万定金。"上周陪朋友看房,她指着西派天河序的LDKB大横厅直呼上头。

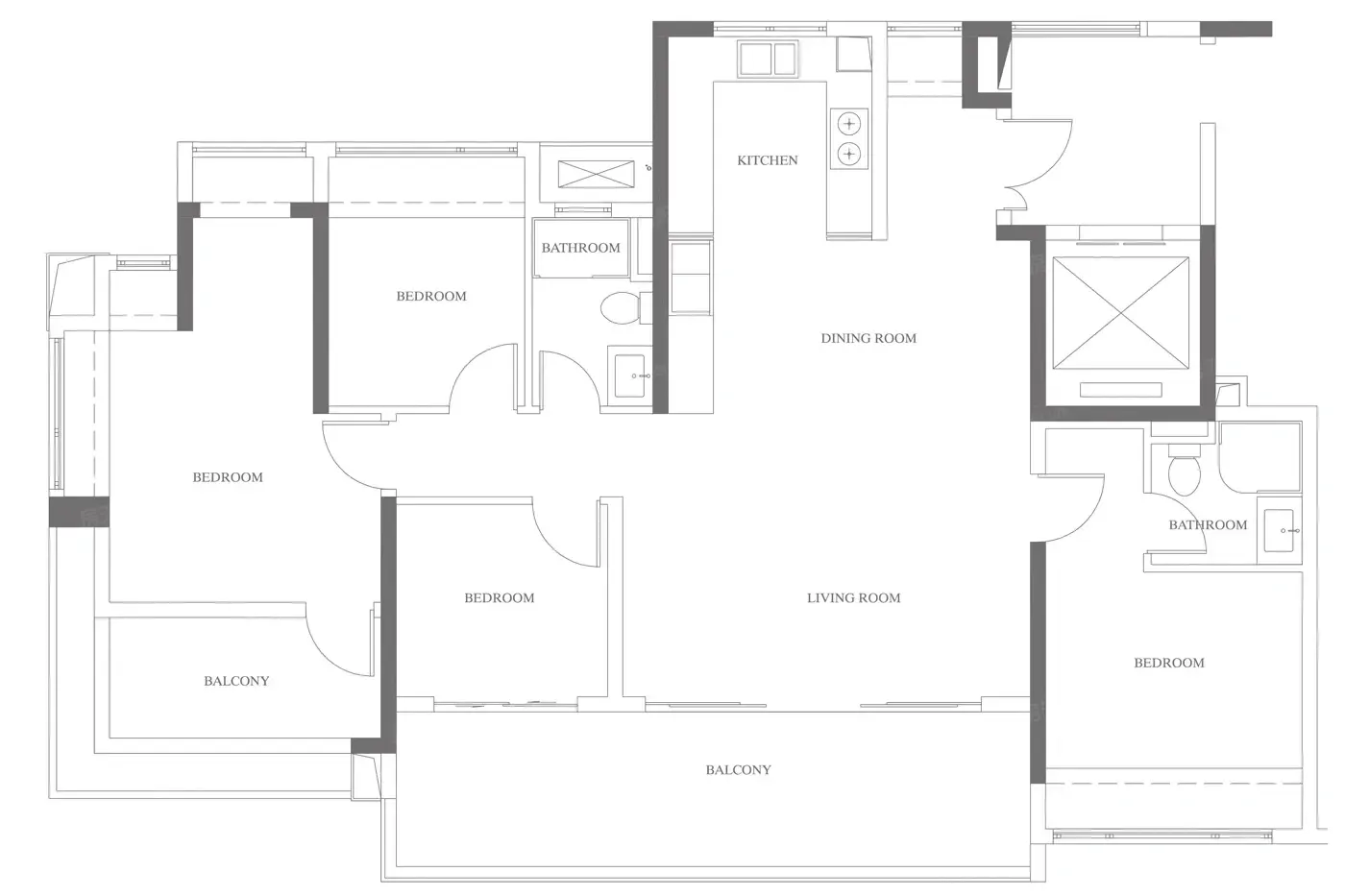
这个盘让我惊讶的远不止双套卧!首先板楼在天河近乎绝迹,但这里用140㎡做出双主卧+9米阳台,电梯厅自带采光比玄关还大。更夸张的是125㎡塔楼实用率超110%,把走道面积全塞进收纳柜,连家政间都配独立通风。

地段才是真王炸!梅花园站350米=5站到珠城,18号线开通后1站杀到冼村。对面信达金茂广场把山姆会员店搬到家门口,高层还能跟白云山say hi。不过要吐槽下部分楼栋靠近规划路,低层可能有噪音,且学校暂未官宣划片。

该内容疑似使用AI技术合成,请谨慎甄别

编辑于2025-07-06 广州

投诉
#天河品质住宅 #板楼稀缺性 #通勤王者 #户型研究所 #新生代改善
说点什么…