1/5
妖孽看剑
关注

420米双地铁+全配套满分!花都新盘真实测评,看完再决定

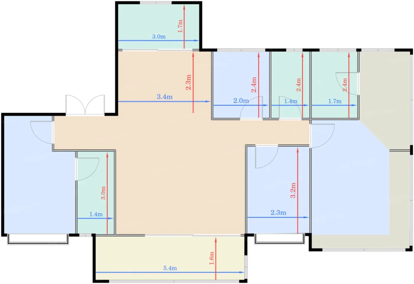
"走!带你去家门口的地铁站看房" 朋友这句话让我当天就冲去了花都区府板块。作为深耕地产20年的从业者,这次测评让我发现些惊喜:这个容积率2.5的社区,家门口420米直达地铁,教育配套直接拉满10分。但更值得关注的是,楼间距超宽的设计让168㎡户型拥有跑道级飘窗,这在同价位竞品中属实少见。不过要注意,周边在售新盘多达10余个,建议实地对比采光面再决定。毕竟买房这事儿啊,就像选伴侣,光看外表可不够,得细品每个角落的诚意。

该内容疑似使用AI技术合成,请谨慎甄别

编辑于2025-06-19 广州

投诉
#广州买房攻略 #低密社区 #地铁房 #教育配套 #品质生活
说点什么…