1/6
新不了晴
关注

天河梅花园地铁盘测评|7.9万的单价究竟香不香?

"阳台正对邻居厨房?"闺蜜收房时惊呆的表情承包了我一周的笑点。今天说说这个争议颇大的天河改善盘——西派天河序,看完这篇你再决定要不要冲。

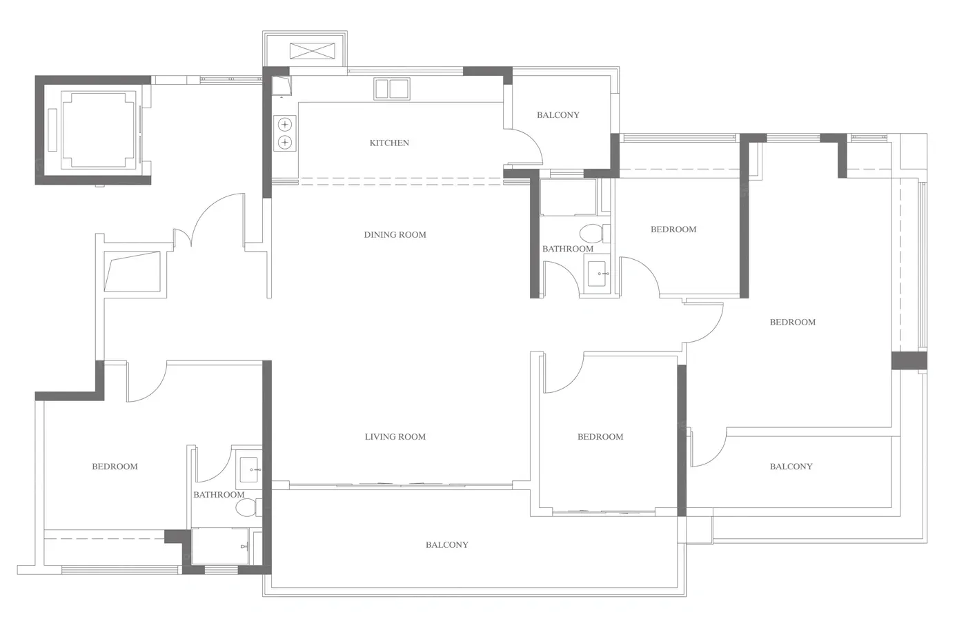
作为天河核心区难得的纯改善盘,它确实拿捏住了城市中产的三大痛点:①梅花园地铁口4分钟脚程,3号线+在建18号线双轨交汇,珠江新城通勤族狂喜;②周边三甲医院+名校环绕,生活配套堪称顶配;③125㎡四房做到双套房设计,飘窗全赠送这点很戳细节控。

但必须吐槽的硬伤也很明显:容积率3.0的塔楼社区,部分户型存在对视问题;7.9万/㎡的单价,比隔壁和樾府贵出1万+/㎡;阳台进深仅1.5米略显鸡肋。建议重点关注190㎡楼王户型,270°转角厅+独立家政间的配置,才是改善该有的样子。

当通勤便利与居住密度正面对决,当品牌溢价遇上实用主义,你会怎么选?

该内容疑似使用AI技术合成,请谨慎甄别

编辑于2025-06-06 广州

投诉
#天河新房测评 #地铁房解析 #改善住宅指南 #户型设计研究所 #生活场景测评
说点什么…