1/4
师太嘿嘿
关注

西派天河序这电梯厅设计 开发商真把业主当甲方了?

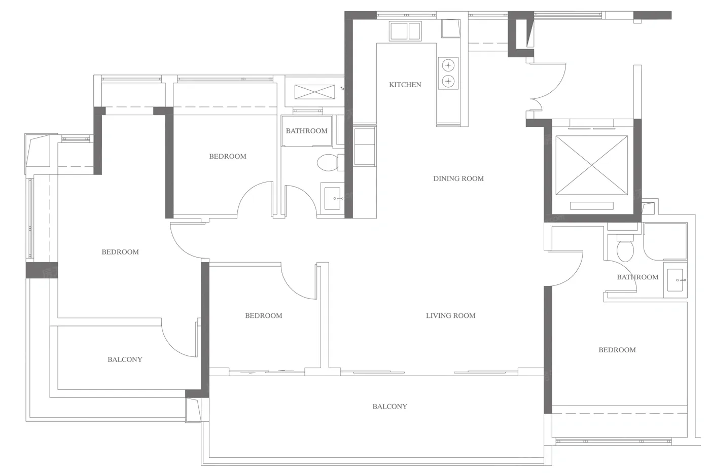
闺蜜最近看房魔怔了,逢人就吐槽现在户型太不把隐私当回事。直到我带她看了西派天河序140㎡户型的专梯专户,电梯门一开她就破防了——五六平的独立电梯厅里,鞋柜雨伞婴儿车各就各位,指纹锁一按直接进玄关,楼道里连个对门邻居都碰不着!

更绝的是双主套设计,次卧居然也带独立卫浴。闺蜜掰着手指算:父母起夜不用穿过客厅,孩子写作业不怕被打扰,夫妻俩加班回来冲澡互不干扰。要说现在的改善盘,早该像西派天河序这样搞空间切割术,把60%面积用在刀刃上,剩下40%留给家人亲密时光。

梅花园地铁口这地段藏着这种神仙户型,开发商怕不是把业主当VIP甲方伺候?评论区说说,你们能接受和邻居共用电梯厅吗?#天河改善盘 #私密空间设计 #新生代家庭

该内容疑似使用AI技术合成,请谨慎甄别

编辑于2025-04-30 广州

投诉
#天河改善盘 #私密空间设计 #新生代家庭
说点什么…