1/4
饭团家的鳗鱼
关注

南明精英家庭看过来!铁建城为什么能成贵阳改善首选?

"这个盘居然卖爆了?"上周陪老张跑盘时,他对着销售中心沙盘发出灵魂拷问。从业20年的我必须承认,铁建城的市场表现确实亮眼:连续拿下网签金额1.16亿+网签面积1.2万方双料冠军,成交均价10515元/㎡比全市均价高出23%。

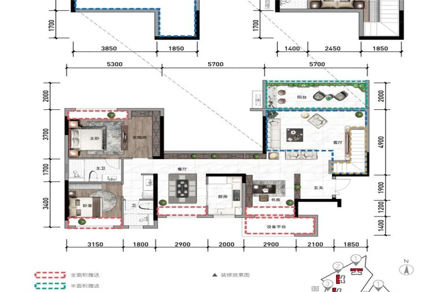
老张的故事挺有代表性:二胎家庭急需改善,既要南明区教育资源(周边配套评分10分),又要35%绿化率的大社区。当他看到3-4居的112-412㎡户型分布,装修交付标准,突然拍板:"就这个!"现在他每天从2.5容积率的社区穿过,送娃步行10分钟到学校。

但必须提醒:2026年交房周期较长,建议资金周转紧张的家庭慎重。实测周边在建路网,目前自驾更便捷。对于注重居住品质的新生代家庭,这个项目的园林规划和教育配套确实能打,不过得接受现阶段商业配套还在建设中。

该内容疑似使用AI技术合成,请谨慎甄别

编辑于2025-08-03 贵阳

投诉
#贵阳楼市 #改善住宅 #南明区房产 #品质生活 #买房攻略
说点什么…