1/3
饭团家的鳗鱼
关注

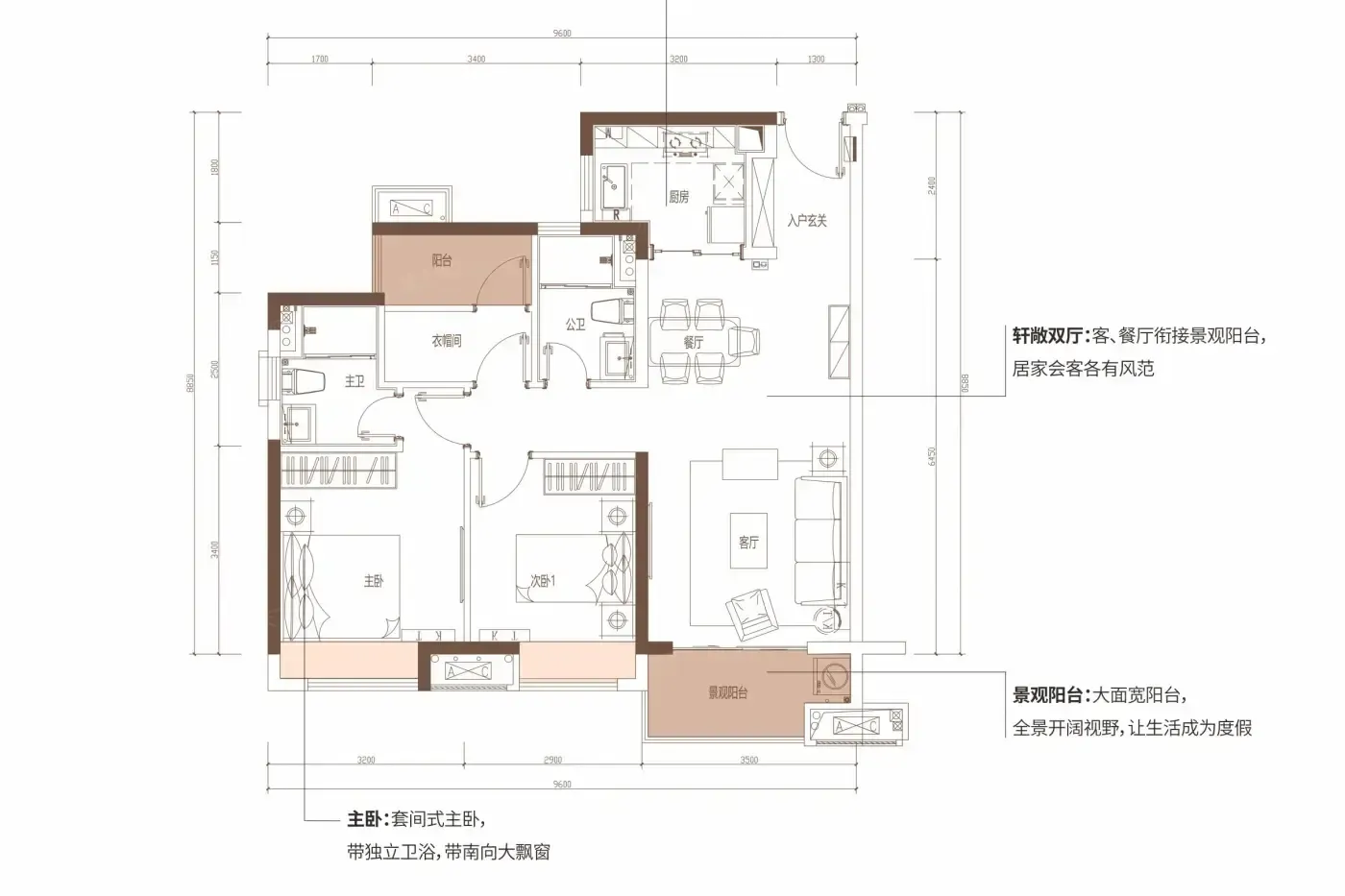
65万起买三房?这届刚需盘把空间榨出花了

最近看房群里有个热梗:买房就像开盲盒,直到交房那刻才知道是惊喜还是惊吓。但今天看的这个盘,硬是把89㎡做成了三室两厅双卫,飘窗台能改咖啡角,次卧还能塞下衣帽间...

■【总价65万的三房藏着什么秘密】

1. 飘窗改造术:实测1.8米飘窗秒变工作台+储物柜,比常规户型多出3㎡使用面积。注意窗台防水要做好

2. 动静分区的魔法:儿童房与主卧呈对角布局,实测关门后噪音值降低26分贝

3. 隐藏式收纳:走廊吊顶暗藏30cm储物空间,能塞下全家行李箱

■但要注意这些细节:

- 厨房操作台面仅4.2米,双人备餐略拥挤

- 次卧开间2.7米,定制榻榻米更实用

- 小区东侧临路栋需加装隔音窗

当预算和品质需要平衡时,好户型就是最好的翻译官——把每寸空间写成诗,让日常动线变成生活韵律。你选择的三室两厅,不该只是钢筋水泥的排列组合,而应是晨起咖啡的香气流转,是孩子奔跑的安全区,是深夜加班的静谧角。

该内容疑似使用AI技术合成,请谨慎甄别

编辑于2025-05-29 佛山

投诉
#佛山买房攻略 #小户型改造 #刚需房测评 #空间优化术 #户型设计解析
说点什么…