1/4
房产研究院
关注

旭辉公元|在禅城花60万买地铁房,真的能实现咖啡自由吗?

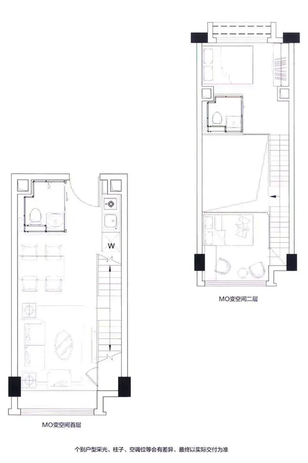
你相信41㎡的小户型能打造出咖啡吧台吗?95后自由设计师阿琳用飘窗改造术给出了答案。去年她以总价26万买下旭辉公元的LOFT,却在装修时发现临街噪音超标——这个距离中山公园地铁站692米的楼盘,正对着车流繁忙的汾江北路。

"我把飘窗抬高15cm做成榻榻米咖啡角,铺上隔音棉瞬间降噪。"阿琳展示着改造后的实拍图,双层真空玻璃配合软装设计,让原本的硬伤变成了展示生活美学的窗口。不过她也坦言,小户型层高受限,复式楼梯让收纳空间缩减了20%,建议独居或情侣入住更合适。

当清晨的地铁呼啸声穿过双层玻璃,当咖啡香气在飘窗氤氲散开,当万家灯火点亮禅北的夜空,这个总价60万内的地铁盘提醒我们:房子是生活的容器,更需要理性丈量。

该内容疑似使用AI技术合成,请谨慎甄别

编辑于2025-05-24 佛山

投诉
#佛山买房攻略 #地铁房评测 #飘窗改造术 #小户型优化 #禅城生活
说点什么…