1/11
Labubu
关注

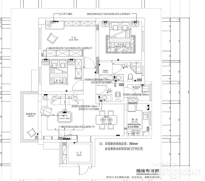
省府好房出售 鑫远御文台 3室2厅 120.98㎡ 156万

鑫远御文台

书香路与新韶西路交汇处西北角(新韶西路口站以东)

第13层,共29层

120.98平米

户型是3室2厅2卫,户型周正,南北朝向,小区周围配套完善

装修皆用的大品牌,无甲醛,因工作变动出售房屋,步行可达天心区实验小学,明德中学,师大附中双语,隔友谊路地铁口1.2km

停车场空间大,有2层

中介勿扰!中介勿扰!中介勿扰!很烦人!

编辑于2025-08-24 长沙

投诉
说点什么…