1/5
楼市百晓通
关注

「交房前降价是雷还是礼?」看房日记碎碎念|梦想·凤栖台

「现在买房的都是大冤种?」冒着被骂风险来扒这个盘

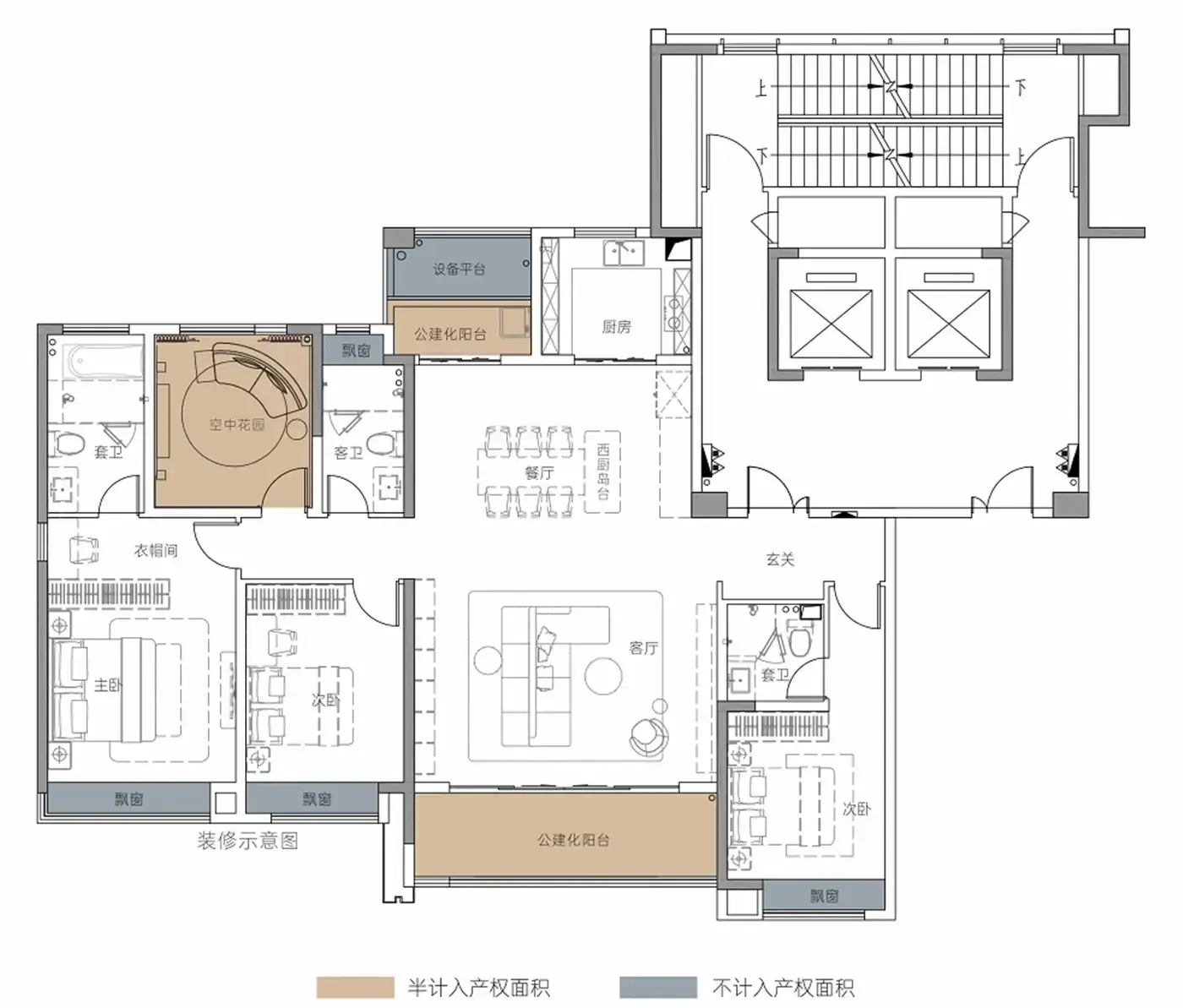
陪闺蜜看房看得瞳孔地震:梅二居然藏着个不声不响卷性价比的狠货。191㎡四房总价267w起,单价直接砍到1.7w?这对当年超预算没敢看的我们简直是暴击...

双地铁buff叠得有点妙:

从售楼部往东溜达800米是6号线中塘站,实测踩点百合站在建出口只要8分钟。但最绝的是端午实测晚高峰开车到五一广场35分钟,这在临铁盘里算超常发挥

梅二配套三件套:

▫️师大附中梧桐学校就隔条马路

▫️下楼就是超级中轴绿化带,遛狗党狂喜

▫️招商花园城在建中,售楼小姐姐说年底东段就能逛?

现房诱惑太致命:

10月交房看得见摸得着,阳台封窗都做好了。绿化正在铺草皮,楼间距够宽不挡光。但梅二现在人气确实不足,晚上散步估计要组团

价格过山车警告:

去年开盘2w+现在跳水,对预算刚好的朋友是福利,但高位入手的邻居怕是要哭晕。这种行情下开发商能不能兑现品质交付,建议盯紧工地进度条

房子终归要回归居住本质。如果对城市新中心发展有耐心,这个盘确实比隔壁某些豪宅实在。但如果你是生活配套即时享乐派,建议再观望半年

该内容疑似使用AI技术合成,请谨慎甄别

编辑于2025-06-24 长沙

投诉
#梅溪湖买房攻略 #长沙双地铁盘 #现房避坑指南 #改善型住房 #长沙房价真相
说点什么…