1/3
SkyHarbor
关注

湘江壹号测评|开福区低密别墅区到底值不值?

听说长沙中产最近都在聊「公园房」,实测发现湘江壹号业主每天提前半小时起床——不是通勤赶时间,是晨跑要打卡三座公园。朋友上周末看房后感慨:"每天被鸟鸣唤醒,但进城得掐着表"。

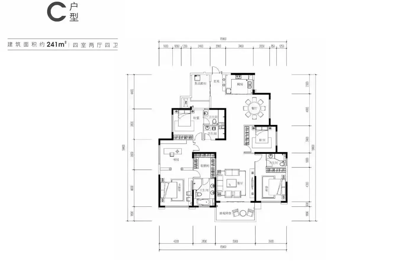
作为长沙十大豪宅之一,0.6容积率确实让241㎡大平层自带松弛感。实测从主卧飘窗望出去,鹅羊山绿意直接漫进房间,这种生态资源在市区确实稀缺。但要注意步行到秀峰山地铁站需12分钟,对于依赖轨交的上班族来说,可能需要重新规划通勤路线。

最近爆火的2000㎡星空泳池健身会所就在小区对面,实测器械区能边跑步边无线充电。不过业主群有真实反馈:周边超市目前仅华润万家,大型商超需驾车15分钟。对于习惯下楼买菜的新生代家庭,这点要纳入考量。

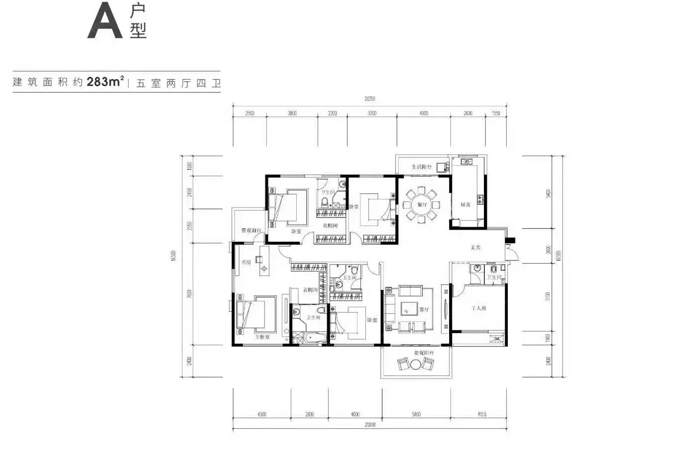
当「阳台种菜」成为都市人标配,这里283㎡户型预留了双景观露台。但要注意东西向户型下午西晒明显,建议优先选南向房源。这样的生活容器,是否装得下你对品质生活的想象?

该内容疑似使用AI技术合成,请谨慎甄别

编辑于2025-06-05 长沙

投诉
#长沙买房攻略 #别墅生活体验 #宜居生态住宅 #改善型住房 #开福区楼盘
说点什么…