张雪
关注
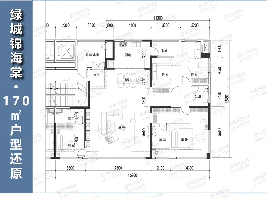
锦海棠户型尺寸图
2025-03-27 长沙
投诉
#我和我的楼盘
说点什么…
点赞
评论