1/6
买房防雷
关注

保利时区|重庆惊现“教科书式卷王”社区?

"给娃找数学老师,必须985毕业!"刷到业主群这条消息时,我突然理解了保利时区的AB面。这个轻轨站旁的社区,藏着三重生活真相:

①【教育执念暴露社区气质】高密度出现的初高中家教招聘,时薪80元还要求"长期稳定",暴露了社区住户的核心画像——中产家庭扎堆的成长型社区,周边建发书香府等教育配套辐射下,家长们正暗暗较劲。

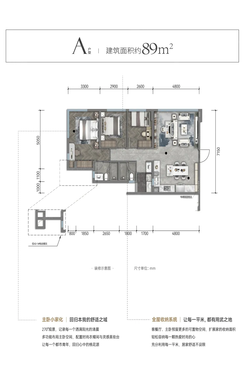
②【户型暗藏生活哲学】89㎡三房做成双卫+独立玄关,飘窗自带插座预留咖啡机位。动静分区把书房和儿童房隔在走廊两端——这届开发商比爸妈更懂辅导作业时需要的"安全距离"。

③【地铁口藏着生活结界】实测步行7分钟到高义口站,但商业配套还在发育期。好在厨房U型布局能塞下双开门冰箱,毕竟每周囤货已成年轻家庭刚需。

当轻轨穿楼而过的噪音遇上30%绿化率,当教育焦虑碰撞全龄活动空间,这个社区正在演绎重庆家庭的现实寓言:房子终究是装生活的容器,关键看你怎么分层收纳。

该内容疑似使用AI技术合成,请谨慎甄别

编辑于2025-08-31 重庆

投诉
#重庆买房攻略 #教育型社区 #户型设计解析 #新生代家庭 #轨道房测评
说点什么…